


199 138 ₽/м²
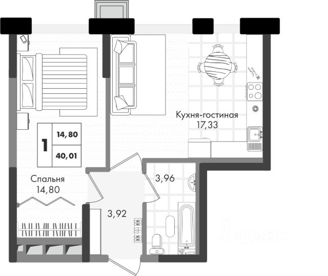
1-комнатная квартира, как 2-комнатная в жилом комплексе Зеленая территория от надежного застройщика СЗ Флагман в Краснодаре. Покупка квартиры в ЖК Зелёная территория это: дворы без машин с большими детскими площадками; баланс природы и городской среды; библиотека, конгресс-центр, фитнес-центр; много парковочных мест, наземная многоуровневая парковка; выделенная велосипедная дорожка на длинной прогулочной аллее в собственном закрытом от посторонних парке; зарядные станции для автомобилей; спортивные площадки для детей и взрослых; собственный парк на территории комплекса - 1,2 Га; ТРК Красная площадь, Леруа Мерлен - 10 минут на машине; школа в 2 минутах ходьбы от дома; 3 минуты до детского сада; рядом находятся ледовый дворец Iсе Раlасе, спортивный комплекс "Баскет Холл", школа ЦСК и теннисные корты; выезд на Ейское шоссе - дорога на море за час без пробок. За более чем 20 лет группа компаний Флагман построила: 9 ЖК, 4 200 квартир 24 многоэтажных дома 2 коттеджных посёлка 7 коммерческих БЦ Подберите 1-комнатную квартиру по вашим параметрам в ЖК Зелёная территория от застройщика СЗ Флагман. Звоните или нажимайте Заказать звонок - мы сформируем подборку планировок, просчитаем стоимость ежемесячного платежа и пришлем вам.












































































































































































