


239 250 ₽/м²
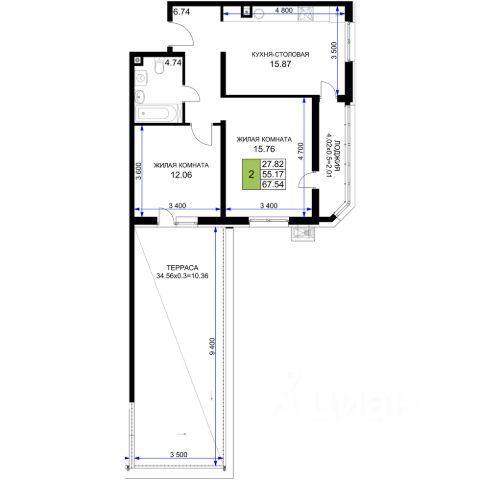
Двухкомнатная квартира в жилом комплексе "Фонтаны" спроектирована с учетом современных требований к комфорту и функциональности. Просторная кухня и две изолированные комнаты обеспечивают удобную и гибкую организацию пространства - вы можете использовать их как спальню и детскую, кабинет или гостевую. Особенность планировки - панорамное витражное остекление, которое наполняет интерьер естественным светом и визуально расширяет пространство. Уютную атмосферу дополняет светлая лоджия с витражным остеклением, которую можно обустроить как зону отдыха или полезное подсобное помещение. Продуманное расположение всех зон, высокие потолки и большие окна создают ощущение простора, света и уюта, делая эту квартиру в "Фонтанах" по-настоящему комфортным и современным домом. Купить 2-комнатную квартиру 2-комнатных квартир в Фонтаны в Краснодаре.


























































































































