490 937 ₽/м²
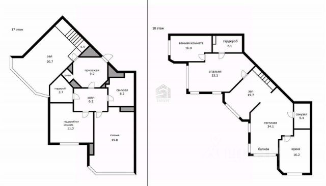
Новый пентхаус в центре фестивального микрорайона Редкость на рынке — трёхуровневый пентхаус с собственной террасой и садом. В квартире реализован уникальный дизайнерский ремонт премиум-класса, техника Miele на двух кухнях, итальянская мебель и двери Lualdi, душевые и санузлы Duravit, встроенная музыка Bose, натуральные камни и дерево. Эксклюзивная кровля более 150 м² и гриль-зона делают этот пентхаус настоящей жемчужиной города. Характеристики и преимущества: Общая площадь квартиры с террасой и эксплуатируемой кровлей более 329,3 м². Планировка позволяет при желании добавить изолированные комнаты. Есть прачечная, просторные залы, кабинет, зал для йоги. Приточно-вытяжная вентиляция поддерживает чистый воздух и комфортную температуру в любое время года. Терраса с садом ухаживается профессиональными садовниками, проектор и монитор создают кинотеатр под открытым небом. Для кого: Идеально для семьи, которая ценит простор, приватность и премиальный комфорт. Подойдёт для тех, кто любит принимать гостей, устраивать вечеринки на террасе, заниматься спортом дома или работать в уютном кабинете. Отличный вариант для ценителей дизайнерских решений и современных технологий в доме. Документы готовы к сделке. Звоните прямо сейчас, чтобы получить дополнительные фото и видео, а также записаться на эксклюзивный показ — таких пентхаусов в районе больше нет!

























































































