


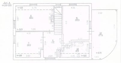
Продаю свой шикарный коттедж , строила для себя , по своему , личному проекту! Мой дом , построен не как у многих любителей , которые строят из говна и палок, так называемые бюджетные дома, а в итоге: потом у вас через год или раньше), трескается фундамент и стены, зачастую нет даже элементарного , армирования в стенах , в кирпичной кладке пустошовка , через пустошовку после дождя проникает влага в дом и появляется плесень.... Этот дом для тех, кто понимает в качестве строительства!!!! Пройду любой строительный контроль!!! Все видео и фото, поэтапного строительства дома есть! В доме три спальни , сан узел, кухня, большая гостинная с выходом на террасу. Красивый вид на горы, где каждое утро можно встречать, шикарные рассветы и закаты и сердце ваше, будет замирать от такой красоты!!!! Дом выполнен полностью из монолитного каркаса , бетон М 300, сейсмоустойчивость 7 балов! Фундамент прочный , глубина 3,5 м, перекрытия - монолитная железобетонная плита толщиной 18 см. Потолок монолитный. Толщина стен 40 см, утеплитель технониколь 80 мм. Фундамент свайно- ростверковый. Кирпич лофт - бардо , очень стильный и прочный , морозо - и влагостойкий , устойчив к деформации, сохраняет тепло. Крыша утеплена пеноплексом в 2 слоя, отвод воды с крыши, осуществляется в трех местах. Панарамные, дорогие, окна в пол, высота окон 3 ,10 м с энергосберегающими , тонированными стеклами . Есть все коммуникации , 15 кв , септик на 6 кб, центральная вода, интернет. Эксклюзивный одноэтажный коттедж (дом) в стиле лофт, для круглогодичного проживания в закрытом коттеджном поселке ,в самом сердце живописного места, где гармония природы встречается с современным комфортом! Волшебное место, место силы с видом на горы! Расположение очень удобное 30 км до г. Краснодара. Отличные дороги! Красивое место в предгорье Кавказа. В окрестностях есть лес где можно собирать грибы , река, сероводородный и серебряный источники, пруд с прекрасными лотосами! Досуг на любой вкус: грибы, кизил, рыбалка, активный отдых в горах. А самое главное целебный воздух. В 5 минутах находиться станица Смоленская и Григорьевская там есть все необходимое: 2 школы, 2 детских садика , частные садики, развивалки, православная церковь, больница, пятерочка, магнит, сбербанк, клубы загородного отдыха, рынок где можно купить свежие и домашние продукты. До Черного моря самая короткая дорога через горы 80 км , по трассе 130 км. Все документы готовы к продаже!!! Дом введен в эксплуатацию!!! Собственник!!! Торг!!! Все подробности по телефону!








































































































