Продаётся дом 180 м2 с видом на бухту на участке 4 сотки в Борисовке.
Строили для себя, поэтому на качестве и материалах не экономили. Гoд пocтpoйки - 2024.
Фундамент 1 метр, все перекрытия железобетонные, арматура 14-16 мм, сейсмопояс, стены монолит и керамзитоблок 20*40 см, утепление пенополистирол 8 см. Двухкамерные окна ламинированные с защитным слоем, самоочищающиеся, высокого качества.
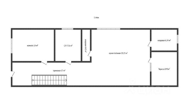
Общая площадь дома 179.4 кв.м., из которых:
1 этаж 90 кв.м., комната 12 кв.м., 8 кв.м. сан. узел, свободная планировка 70 кв.м.,
2 этаж свободная планировка с возможностью спланировать 3 комнаты и сан. узел.
+ Тёплый цокольный этаж: 38 кв.м. высотой 2,8 метра обшитый ЦПП, из которых котельная 4 кв.м., сан. узел 10 кв.м., свободная планировка 24 кв.м. + подсобное помещение высотой 1.4 метра с накопителем 1 м3.
Дом в предчитовой отделке, с разведением всех коммуникаций. Подготовлены закладные для террасы и выходом с первого этажа.
Отопление: радиаторы + тёплые полы, даже в цоколе. Есть фото всех этапов работ.
Коммуникации: элекроснабжение 15 кВт, скважина 101 метр с обсадной трубой(прошли 3 жилы, вода есть всегда), автономная канализация 3 м3.
Подключены временные душ, туалет, кухня.
Низкие коммунальные платежи, в самый холодный месяц 14 т.р., летом не более 5 т.р., что является хорошим показателем качественного утепления.
Тихий участок находится на тупиковой улице, напротив лес, а с другой стороны вид на горы и бухту, который уже не перекроется.
Район активно застраивается, новая школа и поликлиника в процессе строительства, есть детский сад, магазины продуктов и хозяйственных товаров, супермаркет магнит, кб, пункты выдачи озон, вайлдберриз, яндекс, остановка общественного транспорта в 15 минутах пешком.
В 10 минутах на авто средняя общеобразовательная школа 28, 34, 31, детский сад 77, 31, 50, поликлиника в 5 минутах, три фитнес клуба, гипермаркеты Лента, Леруа, Метро, Магнит, рынок.
Море в 20 минутах на авто. До центра города 20 минут.
Без обременений. Документы готовы к продаже.
Юридическое сопровождение и гарантия безопасности сделки.
Поможем оформить военную или базовую ипотеку.
Работаем с материнским капиталом.
Наша компания состоит в Российской Гильдии Риелторов.
Рассматриваем обмен на авто 2-3 млн. с доплатой.
ЗВОНИТЕ / ПИШИТЕ прямо сейчас, проконсультируем, проведем офлайн или онлайн показ, при необходимости предложим другие объекты.
Приятные и ценные подарки ждут вас по окончанию сделки, ваучер в Турцию на двоих на 7 дней в отели 5*, бонусы для покупки мебели, техники, ремонта и многое другое.