


358 284 ₽/м²
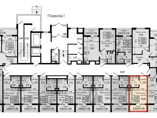
ЖК Sun Hills Olginka - это прекрасная возможность жить в окружении роскошных пейзажей и чистого воздуха, не отрекаясь от удобств городской жизни. Применение новейших технологий в строительстве Ваше уникальное жилое пространство с парком Возможность приобретения квартиры с завершенным ремонтом НЕ УПУСТИТЕ ШАНС ЗАБРОНИРОВАТЬ КВАРТИРУ МЕЧТЫ ЖК Sun Hills Olginka - это спокойный комплекс, где сосредоточены несколько многоэтажных зданий, каждое из которых оборудовано подземным техническим этажом. Все строения выполнены по монолитно-кирпичной технологии, что обеспечивает прочность и долговечность конструкций. Внутри комплекса предоставляются: Облагороженная зеленая территория с просторными двориками Разнообразные спортивные площадки и уютные зоны для отдыха Оформленные со вкусом вестибюли и холлы Квартиры с балконами и лоджиями, защищенными внутренними витражами для обеспечения безопасности и эстетического удовольствия Подъезды включают: Дизайнерский интерьер холлов Доступные удобства для людей с ограниченными возможностями Просторные помещения для хранения колясок и велосипедов Системы видеонаблюдения и охраны для вашей безопасности На территории комплекса расположены: Гостевые парковки Детские и спортивные площадки для всей семьи Отдельные зоны для выгула домашних животных Инфраструктура комплекса включает: Парк для семейного отдыха Модные коммерческие помещения на первом этаже Самостоятельную газовую котельную для снижения затрат на отопление Добавьте это предложение в закладки. ЖК Sun Hills Olginka - место, где ваши мечты могут стать реальностью. Отправьте нам сообщение, и мы поможем вам подобрать квартиру уже сегодня. Купить квартиру-студию от застройщика в Туапсе.









































































































































































