Мы используем куки-файлы. Соглашение об использовании
Помещение свободного назначения, 184 м²

Сдается помещение свободного назначения, 184 м²

Площадь184 м²
Этаж2 из 2
Отчёт о привлекательности объектаУзнайте, насколько помещение и район подходят для вашего бизнеса
Что входит в отчёт
  • Охват населения
  • Пешеходный трафик
  • Автомобильный трафик
  • Средний бюджет семьи по району
  • Арендные ставки рядом
  • Точки притяжения
  • Конкуренты в радиусе 1 км
  • Рекомендации по выбору места для бизнеса
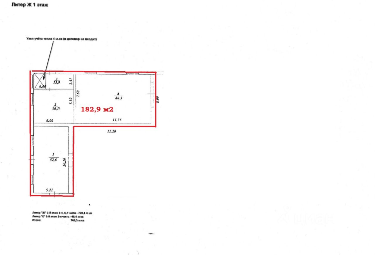
СОБСТВЕННИК предлагает в аренду помещение свободного назначения- Общая площадь S = 184 м² на 2 этаже/ 2эт. здания. В состав его входят: - Зал — 108 м² - 2 комнаты — 21,8 и 22,7 м² - Коридор — 11 м² - 1 комната на 1 этаже — 17,7 м², оснащенная подъемником размером 1 м 2 м с грузоподъемностью до 700 кг. Коммуникации: - Электричество: напряжение 220/380 В, мощность до 50 кВт, можно увеличить. - Центральная вода и канализация (трубы диаметром 40100 мм внутри помещения). - Отопление от собственной котельной. - Интернет. Санузел на 1 этаже, в пристройке. Его и душ можно установить на втором этаже, в основном зале. Есть возможность увеличения площади до 524 м² путем объединения с соседним помещением, где уже есть теплый санузел. Дополнительно: — Круглосуточная охрана, база огорожена; — Удобный подъезд - для любого автотранспорта; — Недалеко от автотрассы М4 Дон, улицы Восточный обход и дороги Краснодар — Кропоткин. — Цена: 420 руб/м² + ком.усл. по счетчику. НДС не взимается. Возможные области применения: торговля, выставка, офис, производства, мастерские, упаковка, сборка, фасовка. Обсудим все варианты. Пищевое производство - не рассматривается. Просмотр: По будням с 9:00 до 14:00. Звоните заранее! Без комиссий для арендаторов. Посредникам -не беспокоить.
lock

Войдите или зарегистрируйтесь
для просмотра информации

Просматривайте условия сделки и всю информацию об объекте
Сохраняйте фильтры в поиске и не вводите заново
Доступ к избранному с любого устройства
Неограниченное добавление в избранное
Позвоните автору
Вам ответят на все вопросы
Остались вопросы по объявлению?
Позвоните владельцу объявления и уточните необходимую информацию.
  • Инфраструктура
  • Похожие рядом
  • Общая площадь184 м²
Местное кондиционирование
Центральное отопление
Гидрантная система пожаротушения
Помощь надёжных риелторов
Риелтор партнёр Циан поможет купить или продать любую недвижимость
Агентство недвижимости
Документы проверены
77 280 ₽/мес.

Прямая аренда (от года), минимальный срок аренды 11 месяцев, доступны арендные каникулы, предоплата за 1 месяц

1 057 $/мес.
896 /мес.
Цена за метр
5 040 ₽ в год
Налог
УСН
Комиссия
нет
Коммунальные платежи
не включены
Эксплуатационные расходы
включены
Агентство недвижимости
Документы проверены
На Циан
15 лет
Объектов в работе
58