Мы используем куки-файлы. Соглашение об использовании
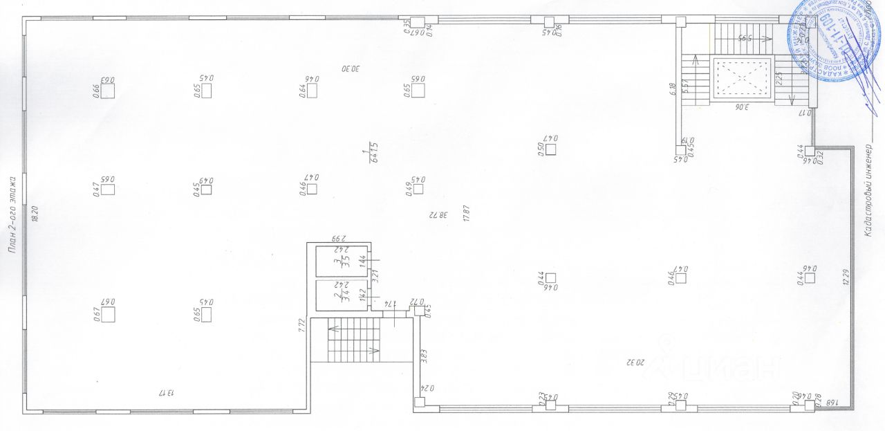
Площадь641 м²
Этаж2 из 2
ПомещениеСвободно
Отчёт о привлекательности объектаУзнайте, насколько помещение и район подходят для вашего бизнеса
Что входит в отчёт
  • Охват населения
  • Пешеходный трафик
  • Автомобильный трафик
  • Средний бюджет семьи по району
  • Арендные ставки рядом
  • Точки притяжения
  • Конкуренты в радиусе 1 км
  • Рекомендации по выбору места для бизнеса
Сдача в аренду целиком или части помещения: 2 этаж 641 м.кв -900 руб/м.кв Варианты использования: магазин любой направленности, банк, салон и т.д. Активный пешеходный и автомобильный трафик. Рядом строятся большие ЖК, перспектива увеличения трафика. Коммуникации все центральные: Электричество, Вода, Канализация, отопление газовое сетевое Своя парковка на 15 машин ****Сдача от владельца напрямую**** Услуги посредников оплачиваются
lock

Войдите или зарегистрируйтесь
для просмотра информации

Просматривайте условия сделки и всю информацию об объекте
Сохраняйте фильтры в поиске и не вводите заново
Доступ к избранному с любого устройства
Неограниченное добавление в избранное
Позвоните автору
Вам ответят на все вопросы
Остались вопросы по объявлению?
Позвоните владельцу объявления и уточните необходимую информацию.
  • Инфраструктура
  • Похожие рядом
Помощь надёжных риелторов
Риелтор партнёр Циан поможет купить или продать любую недвижимость
Автор объявленияАлексей Владимирович
  • Документы проверены
  • 12 лет 3 месяца на Циане
  • 5 объявлений
  • 576 900 ₽/мес.

    Прямая аренда (от года), минимальный срок аренды 12 месяцев, доступны арендные каникулы, предоплата за 1 месяц

    7 566 $/мес.
    6 472 /мес.
    Цена за метр
    10 800 ₽ в год
    Налог
    УСН
    Комиссия
    1%
    Коммунальные платежи
    не включены
    Эксплуатационные расходы
    включены
    Автор объявленияАлексей Владимирович
    Документы проверены