Мы используем куки-файлы. Соглашение об использовании
Площадь3 610 м²
Этажность7
КлассA
Отчёт о привлекательности объектаУзнайте, насколько помещение и район подходят для вашего бизнеса
Что входит в отчёт
  • Охват населения
  • Пешеходный трафик
  • Автомобильный трафик
  • Средний бюджет семьи по району
  • Арендные ставки рядом
  • Точки притяжения
  • Конкуренты в радиусе 1 км
  • Рекомендации по выбору места для бизнеса
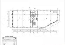
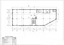
г. Краснодар, ул. Дзержинского, 47. Сдается в аренду 7 этажное, отдельно стоящее, современное здание общей площадью S 3610 кв.м., свободного назначения и свободной планировки, с пред чистовой отделкой. Высота потолков: 1-5 этажи 3,0м; 6 этаж 3,8м; 7 этаж 5,8м. Площадь этажей: 1 этаж S=515 кв .м 2 этаж S=515 кв. м 3 этаж S=515 кв .м 4 этаж S=515кв. м 5 этаж S =515 кв. м. 6-7 этажи(сдаются вместе) S=1030 кв. м Кровля S=470 кв. м (сдается вместе с 6-7 этажами) Стоимость аренды: 1 этаж - 1287500 руб. (2500 руб. кв. м) 2-5 этажи - 772500 руб. (1500 руб. кв. м) 6-7 этажи - 2575000 руб. (2500 руб. кв. м) Цена указана без НДС. Арендная плата облагается НДС 5%. При строительстве данного здания использовались качественные строительные и отделочные материалы. Здание подключено к централизованному водоснабжению и канализации. Электроснабжение осуществляется от собственной электроподстанции. Разрешенная мощность здания 230кВт. Категория надежности 2. Теплоснабжение и горячее водоснабжение здания обеспечивается от собственной газовой котельной, мощностью 1,1мВт. В здании имеется круглосуточное видеонаблюдение, лифт грузоподъемностью до 1000кг, для 6-7этажей собственный лифт. Помещения имеют естественное и искусственное освещение, поэтажные климатические установки, устойчивую связь всех операторов связи, систему пожарной сигнализации. Вблизи здания развитая инфраструктура: магазины Магнит, Магнит-косметик, Пятерочка, OZON, кафе: две автобусные и троллейбусные остановки, в шаговой доступности бульвар на ул. Красной, кинотеатр Аврора, сквер на ул. Офицерской, удобные подъездные пути (логистика), парковочные места для автотранспорта 26 мест. Коммунальные услуги оплачиваются отдельно по счетчикам. Предусмотрен обеспечительный платеж. Здание на стадии завершения строительства. Срок сдачи апрель 2026 г. P.S.: Возможна поэтажная аренда с 1 по 5 этаж. Площадь каждого этажа S 515кв.м. 6, 7 этажи и кровля (верхний блок) сдаются вместе. С верхнего блока открывается круговой панорамный вид на город. Кровля эксплуатируемая. Суммарная площадь 6 и 7 этажей S1030кв.м. Площадь кровли S470кв.м. Площади 6-7 этажей, учитывая высоты потолков, подходят для организации ресторанов или фитнес клуба. Для 6-7 этажей есть готовый дизайн проект ресторана. Доступ к верхнему блоку осуществляется на отдельном лифте. Звоните для получения более подробной информации и организации просмотра! Объект сдается без посредников. О здании Тип здания: бизнес-центр Удалённость от дороги: вторая линия и дальше Парковка: на улице, бесплатная, подходит для грузового транспорта Количество парковочных мест: 26
lock

Войдите или зарегистрируйтесь
для просмотра информации

Просматривайте условия сделки и всю информацию об объекте
Сохраняйте фильтры в поиске и не вводите заново
Доступ к избранному с любого устройства
Неограниченное добавление в избранное
Позвоните автору
Вам ответят на все вопросы
Остались вопросы по объявлению?
Позвоните владельцу объявления и уточните необходимую информацию.
  • Инфраструктура
  • Похожие рядом
Приточная вентиляция
Центральное кондиционирование
Автономное отопление
Гидрантная система пожаротушения
Помощь надёжных риелторов
Риелтор партнёр Циан поможет купить или продать любую недвижимость
СобственникID 139290140
    5 415 000 ₽/мес.

    Прямая аренда (от года), минимальный срок аренды 12 месяцев, доступны арендные каникулы, обеспечительный платёж 1287500 ₽, предоплата за 1 месяц

    71 200 $/мес.
    60 418 /мес.
    Цена за метр
    18 000 ₽ в год
    Налог
    НДС включен: 974 700 ₽
    Комиссия
    1%
    Коммунальные платежи
    не включены
    Эксплуатационные расходы
    не включены
    СобственникID 139290140