Мы используем куки-файлы. Соглашение об использовании
Помещение свободного назначения, от 33 до 70,5 м²

Продается помещение свободного назначения, 33 – 70,5 м²

Площади33 – 70,5 м²
Этаж1 из 18
ПомещениеСвободно
Отчёт о привлекательности объектаУзнайте, насколько помещение и район подходят для вашего бизнеса
Что входит в отчёт
  • Охват населения
  • Пешеходный трафик
  • Автомобильный трафик
  • Средний бюджет семьи по району
  • Арендные ставки рядом
  • Точки притяжения
  • Конкуренты в радиусе 1 км
  • Рекомендации по выбору места для бизнеса
Доступно 3 площади
33 м²
1 этаж
6 765 000 ₽
205 000 ₽/м²
54,6 м²
1 этаж
10 647 000 ₽
195 000 ₽/м²
70,5 м²
1 этаж
12 337 000 ₽
174 992 ₽/м²
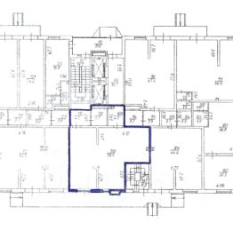
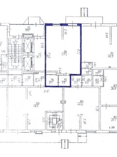
Продаются три помещения свободного назначения площадью: 70,5 кв.м (12 337 500 р.), 54,6 кв.м (10 647 000 р.), 33 кв.м. (6 765 000 р.), каждое помещение имеет отдельный выход. Есть возможность объединения помещений, площадью 70,5 и 54,6 кв.м. Все помещения в предчистовой отделке от застройщика. В аренду не сданы. Куплены по дду от застройщика.
lock

Войдите или зарегистрируйтесь
для просмотра информации

Просматривайте условия сделки и всю информацию об объекте
Сохраняйте фильтры в поиске и не вводите заново
Доступ к избранному с любого устройства
Неограниченное добавление в избранное
Позвоните автору
Вам ответят на все вопросы
Остались вопросы по объявлению?
Позвоните владельцу объявления и уточните необходимую информацию.
  • Инфраструктура
  • Похожие рядом
  • Общая площадь70,5 м²
Естественная вентиляция
Центральное отопление
Помощь надёжных риелторов
Риелтор партнёр Циан поможет купить или продать любую недвижимость
СобственникID 135114212
  • Предоставил паспорт
6 765 000 – 12 337 000 ₽
от 76 461 до 163 349 $
от 65 439 до 139 802 €
Цена за метр
от 174 993 ₽
Налог
УСН
СобственникID 135114212
  • Предоставил паспорт