Мы используем куки-файлы. Соглашение об использовании
Площадь1 300 м²
Этаж1
Отчёт о привлекательности объектаУзнайте, насколько помещение и район подходят для вашего бизнеса
Что входит в отчёт
  • Охват населения
  • Пешеходный трафик
  • Автомобильный трафик
  • Средний бюджет семьи по району
  • Арендные ставки рядом
  • Точки притяжения
  • Конкуренты в радиусе 1 км
  • Рекомендации по выбору места для бизнеса
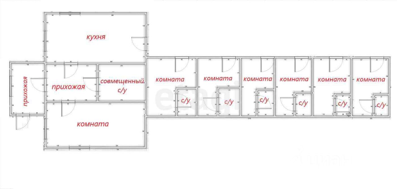
В курортном поселке Пересыпь продается дом с гостевыми номерами. Общая площадь 238 кв. м. на земельном участке 8,63 сотки. В доме одна спальня, кухня, прихожая, совмещенный сан. узел. Рядом находятся шесть номеров (два утепленных можно сдавать круглогодично, и четыре номера не отапливаемые). В каждом номере совмещенный сан. узел, холодильник, кондиционер, телевизор. Во дворе имеются парковочные места для машин. Под навесом стоят варочные панели, стол и мойка. Двор ухоженный, есть мангальная зона, посажены фруктовые деревья, молодой виноград, розы. В шаговой доступности вся инфраструктура. Показ по предварительному звонку.. Дополнительно оплачивается комиссия с покупателя. Код пользователя: 197948 Номер в базе: 3280054
lock

Войдите или зарегистрируйтесь
для просмотра информации

Просматривайте условия сделки и всю информацию об объекте
Сохраняйте фильтры в поиске и не вводите заново
Доступ к избранному с любого устройства
Неограниченное добавление в избранное
Позвоните автору
Вам ответят на все вопросы
Остались вопросы по объявлению?
Позвоните владельцу объявления и уточните необходимую информацию.
  • Инфраструктура
  • Похожие рядом
Помощь надёжных риелторов
Риелтор партнёр Циан поможет купить или продать любую недвижимость
24 000 000 ₽
328 194 $
281 747
Цена за метр
18 462 ₽
Налог
УСН
Агентство недвижимости
Документы проверены
На Циан
1 год
Объектов в работе
более 1000