Мы используем куки-файлы. Соглашение об использовании
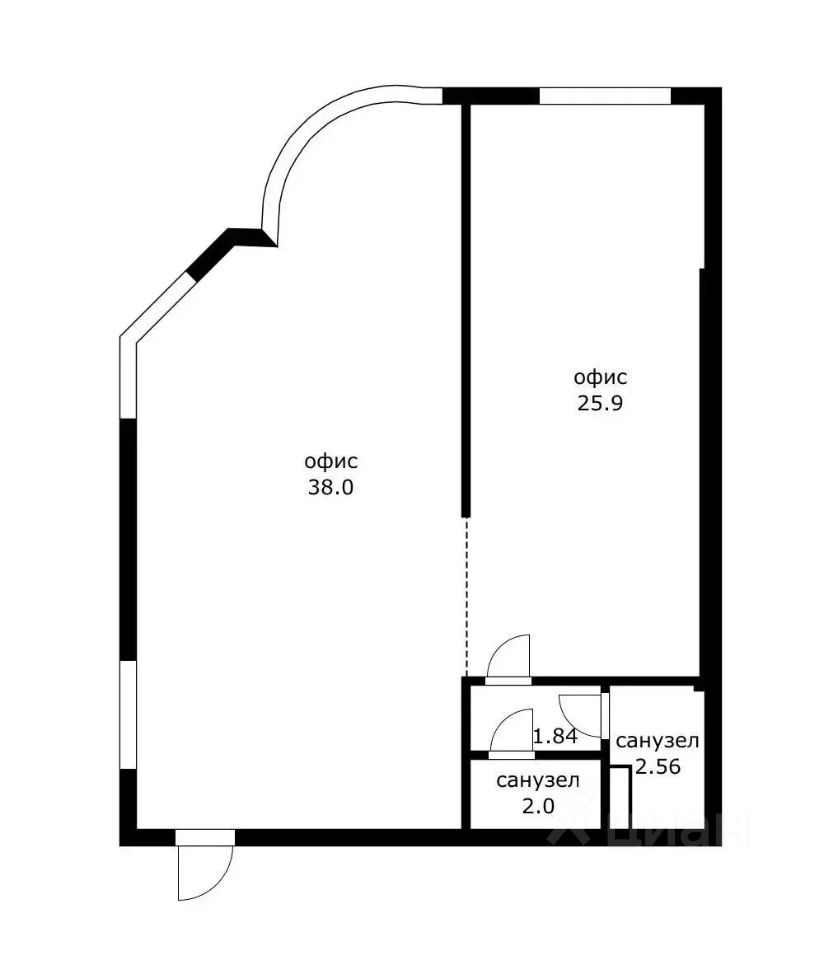
Площадь70,3 м²
Этаж2 из 17
Отчёт о привлекательности объектаУзнайте, насколько помещение и район подходят для вашего бизнеса
Что входит в отчёт
  • Охват населения
  • Пешеходный трафик
  • Автомобильный трафик
  • Средний бюджет семьи по району
  • Арендные ставки рядом
  • Точки притяжения
  • Конкуренты в радиусе 1 км
  • Рекомендации по выбору места для бизнеса
Помещение РЕАЛЬНОЕ, фото РЕАЛЬНЫЕ, цена РЕАЛЬНАЯ! Коммерческое помещение на первом этаже в Юбилейном микрорайоне Краснодара в районе с высокой плотностью и пропорцией жилья к коммерции! Вход в помещение с 1 этажа, поднимаемся по лестнице и попадаем в помещение. Идеально подходит для офиса, пункта выдачи заказов, торговли и любых других направлений! Площадь 70,3 кв.м. м2, имеется собственный санузел. В помещении сдeлaн качеcтвенный офисный ремонт. Дом, где находится коммерция, имеет хорошее месторасположение. Помещение изначально нежилое, не переводилось из жилого. Центральные коммуникации. Много мест для парковки автомобилей. ------------------------------------------------- -- Без оплаты комиссии со стороны покупателя! Хотите получить более подробную информацию или посмотреть помещение? Звоните! Ваш персональный менеджер, Владислав Коноплин ------------------------------------------------- -- Сотрудничество с нашим подразделением по работе с коммерческой недвижимостью обеспечит вам: Возможность поиска покупателя либо арендатора выгодно и в управляемые сроки! Доступ к актуальной базе объектов, включая эксклюзивные предложения, которые есть только у нас! Возможность передачи ваших объектов в доверительное управление: забудьте о хлопотах, наши эксперты возьмут на себя все заботы о функционировании вашего объекта! Работу с персональным агентом, который всегда на связи и готов решить любой ваш вопрос. Выгодные условия для покупателей и арендаторов: база объектов без вознаграждения со стороны покупателя и отсутствие комиссии для арендаторов. Широкая партнерская сеть: возможность поиска объекта на территории не только г. Краснодара, а также всего края и РФ. Обращайтесь, и мы поможем решить вашу задачу наилучшим образом! Номер объекта: 1144527
lock

Войдите или зарегистрируйтесь
для просмотра информации

Просматривайте условия сделки и всю информацию об объекте
Сохраняйте фильтры в поиске и не вводите заново
Доступ к избранному с любого устройства
Неограниченное добавление в избранное
Позвоните автору
Вам ответят на все вопросы
Остались вопросы по объявлению?
Позвоните владельцу объявления и уточните необходимую информацию.
  • Инфраструктура
  • Похожие рядом
  • Год постройки2006
  • Тип зданияЖилой дом
  • Категория зданияДействующее
  • Общая площадь70,3 м²
Естественная вентиляция
Местное кондиционирование
Центральное отопление
Помощь надёжных риелторов
Риелтор партнёр Циан поможет купить или продать любую недвижимость
13 000 000 ₽
182 146 $
155 337
Цена за метр
184 922 ₽
Налог
НДС включен: 2 344 262 ₽
Агентство недвижимости
На Циан
12 лет
Объектов в работе
50
Риелтор
Суперагент