Мы используем куки-файлы. Соглашение об использовании

Продается торговая площадь, 82,7 м²

Площадь82,7 м²
Этаж1 из 1
ПомещениеСвободно
Отчёт о привлекательности объектаУзнайте, насколько помещение и район подходят для вашего бизнеса
Что входит в отчёт
  • Охват населения
  • Пешеходный трафик
  • Автомобильный трафик
  • Средний бюджет семьи по району
  • Арендные ставки рядом
  • Точки притяжения
  • Конкуренты в радиусе 1 км
  • Рекомендации по выбору места для бизнеса
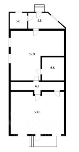
В продаже торговое помещение в центре города Краснодара с сетевыми арендаторами. Площадь помещения 82,7 кв.м. Фасадные окна на проезжую часть. Отдельный вход. Расположение - внутри жилого массива. Арендаторы WILDBERRIES Ремонт Высота потолков 3,9 м Все коммуникации центральные Электрическая мощность 15 кВт Свой сан узел, подсобное помещение. МАП 77 000 рублей ГАП 924 000 рублей Активный пешеходный и автомобильный трафик. Подойдет под многие виды деятельности: магазин, салон красоты, шоу-рум, стоматология, косметология. Звоните!
lock

Войдите или зарегистрируйтесь
для просмотра информации

Просматривайте условия сделки и всю информацию об объекте
Сохраняйте фильтры в поиске и не вводите заново
Доступ к избранному с любого устройства
Неограниченное добавление в избранное
Позвоните автору
Вам ответят на все вопросы
Остались вопросы по объявлению?
Позвоните владельцу объявления и уточните необходимую информацию.
  • Инфраструктура
  • Похожие рядом
  • Площадь участка0 га
  • Общая площадь82,7 м²
  • Статус участкаВ собственности
Центральное отопление
Помощь надёжных риелторов
Риелтор партнёр Циан поможет купить или продать любую недвижимость
  • Документы проверены
  • 1 год 4 месяца на Циане
  • 15 объявлений
  • 9 600 000 ₽
    126 173 $
    107 369
    Цена за метр
    116 083 ₽
    Налог
    НДС включен: 1 731 147 ₽
    РиелторАнгелина Гладышева
    Документы проверены