Мы используем куки-файлы. Соглашение об использовании
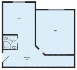
Площадь34,2 м²
Этаж1
Отчёт о привлекательности объектаУзнайте, насколько помещение и район подходят для вашего бизнеса
Что входит в отчёт
  • Охват населения
  • Пешеходный трафик
  • Автомобильный трафик
  • Средний бюджет семьи по району
  • Арендные ставки рядом
  • Точки притяжения
  • Конкуренты в радиусе 1 км
  • Рекомендации по выбору места для бизнеса
Номер объекта: 542159. Предлагаем вашему вниманию превосходное цокольное помещение площадью 34,2 м2 с ремонтом, идеально адаптированное для жизни и бизнеса. Расположенное в удобном и развитом районе, это помещение станет отличным вариантом как для жилья, так и для сдачи в аренду. Преимущества: Современный ремонт: Комфортное пространство, готовое для проживания. Вы сможете въехать и жить с первых дней! Функциональная планировка: Простор позволяет удобно разместить всё необходимое - спальню, кухню и даже зону отдыха. Тихое место: Несмотря на коммерческое назначение, помещение находится в спокойном районе с развитой инфраструктурой на закрытой территории.. Хорошая доходность: Отличный вариант для инвестиций! Возможность сдачи в аренду как на долгий срок, так и посуточно. Этот объект недвижимости ваша возможность создать уютное жилье или начать прибыльный бизнес.
lock

Войдите или зарегистрируйтесь
для просмотра информации

Просматривайте условия сделки и всю информацию об объекте
Сохраняйте фильтры в поиске и не вводите заново
Доступ к избранному с любого устройства
Неограниченное добавление в избранное
Позвоните автору
Вам ответят на все вопросы
Остались вопросы по объявлению?
Позвоните владельцу объявления и уточните необходимую информацию.
  • Инфраструктура
  • Похожие рядом
Помощь надёжных риелторов
Риелтор партнёр Циан поможет купить или продать любую недвижимость
3 200 000 ₽
42 533 $
36 209
Цена за метр
93 568 ₽
Налог
НДС включен: 577 049 ₽
Агентство недвижимости
Документы проверены
На Циан
5 лет
Объектов в работе
633