Мы используем куки-файлы. Соглашение об использовании
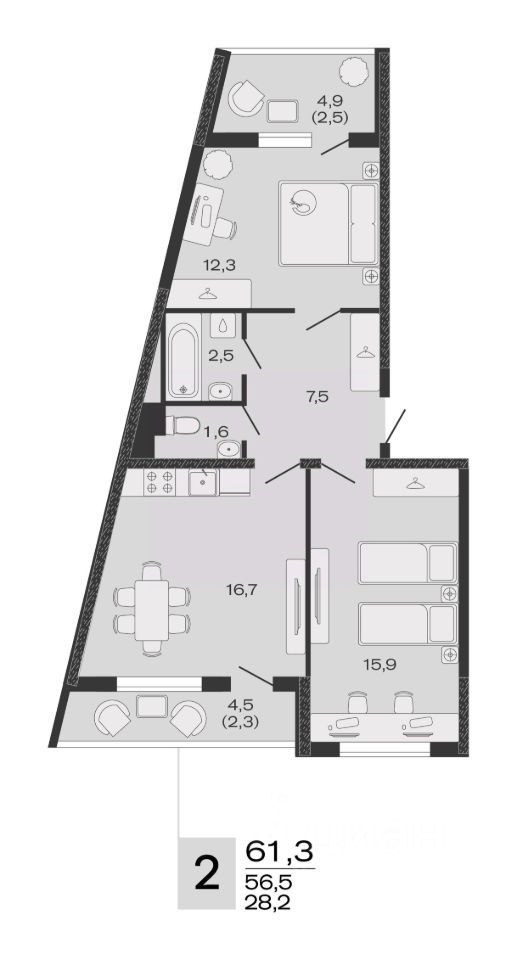
Общая площадь61,3 м²
Жилая площадь28,2 м²
Площадь кухни16,7 м²
Этаж2 из 4
Год сдачи2026
ДомНе сдан
ОтделкаНет информации
В продаже квартира в жилом комплексе "Дзенпарк" от застройщика ГК "Лендекс"! "Дзенпарк" — это современный жилой комплекс расположенный в станице Марьянской, всего в 30 минутах от центра Краснодара. Комплекс строится на 9 гектарах, и состоит из 10 четырех этажных домов Комфорт класса с бесшумными лифтами, окруженных уникальным ландшафтным дизайном с детскими и спортивными площадками, а так же местами для отдыха. Преимущества "Дзенпарка": • Экологически чистая территория с речкой рядом. • Отсутствие промышленных предприятий и ТЭЦ. • Квартиры с просторными террасами. • Система "Умный дом", видеонаблюдение и домофон, что позволит в онлайн режиме наблюдать за вашим ребенком на детской площадке. • Собственная школа на 1100 мест. • Физкультурно-оздоровительный комплекс. • Фермерский эко-маркет. • Близость к детским садам, поликлиникам, местам отдыха и спортивным площадкам. Также в ЖК "Дзенпарк" действуют выгодные предложения, разработанные совместно с банками партнерами! • Ставка 3,5% на весь срок ипотечного кредитования, платеж по которой составит от 8 376р. ; • Квартира в рассрочку без переплат! Рассрочка предоставляется на год с ПВ всего от 30%. • Квартира с ремонтом под ключ за 2,2млн; • И многие другие специальные программы! Познай дзен — приобрети квартиру в ЖК "Дзенпарк"!

О квартире

Тип жилья

Новостройка

Общая площадь

61,3 м²

Жилая площадь

28,2 м²

Площадь кухни

16,7 м²

Высота потолков

2,7 м

Вид из окон

На улицу и двор

Отделка

Нет информации

О доме

Количество лифтов

4 грузовых

Тип дома

Монолитно-кирпичный

Пандус

Есть

Понравилась квартира — узнайте о ней больше

Застройщик ответит на все вопросы

Отделка в ЖК

  • Предчистовая

О ЖК «ДзенПарк»

  • Сдача комплекса
    Сдача в 2026—2027
  • Застройщик
    ГК Лендекс
  • Класс
    Комфорт
  • Тип дома
    Монолитно-кирпичный
  • Парковка
    Гостевая
  • Отделка
    Предчистовая
  • Тип комплекса
    Жилой комплекс
Похоже на то, что вы ищете?

Особенности жилого комплекса

  • Входная группа

  • Лифт

Подробнее о жилом комплексе

Акции в ЖК «ДзенПарк»

Узнайте про персональные условия и дополнительные скидки при покупке квартиры у застройщика

Материнский капитал

Ипотечный калькулятор
  • Базовая
  • Семейная
  • ИТ-ипотека
  • 20%
  • 30%
  • 40%
  • 50%
лет
  • 10 лет
  • 20 лет
  • 30 лет
Загружаем предложения от застройщика и банков
Корпус проверен наш.дом.рф
Обновлено 6 мая 2026
  • Нет в реестре проблемных объектов
  • Застройщик не банкрот
  • Есть эскроу счёт
  • Актуальные фото стройки

Ещё квартиры в жилом комплексе

500 квартир в продаже · Сдача в 2026—2027
Агентство недвижимости
Магазин новостроек
  • 5 лет 3 месяца на Циане
  • 6 743 000 ₽
    Цена за метр
    110 000 ₽/м²
    Условия сделки
    долевое участие (214-ФЗ)
    Бесплатно найдём новостройкуИ поможем на сделке
    Агентство недвижимости
    Магазин новостроек