Мы используем куки-файлы. Соглашение об использовании
Только на Циан
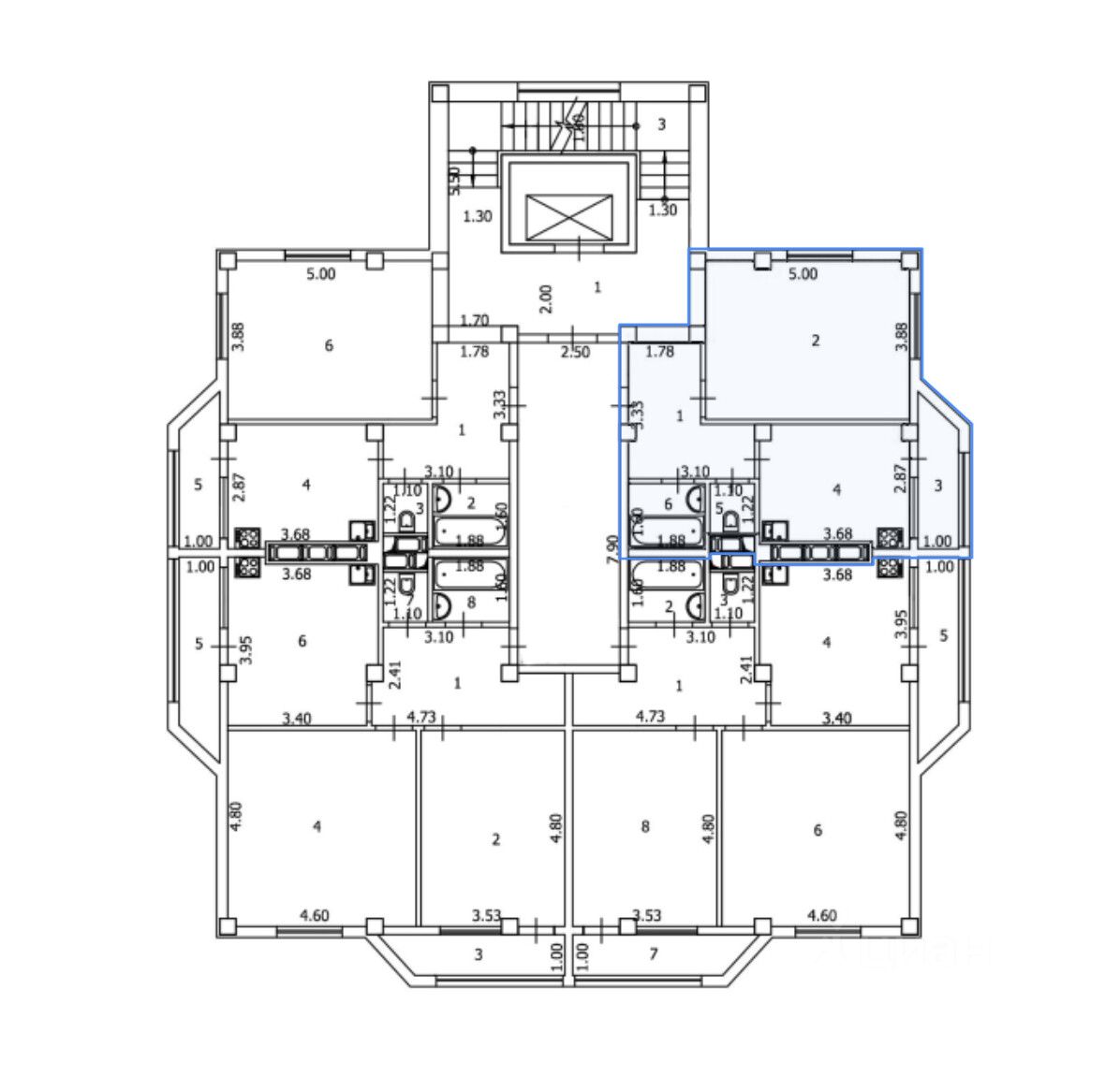
Общая площадь43,48 м²
Жилая площадь19,3 м²
Площадь кухни10,5 м²
Этаж1 из 9
Год сдачи2023
ДомСдан
ОтделкаПредчистовая
Жилой комплекс состоит из 3 корпусов высотой 9 этажей. Здания возведены по надежной монолитной технологии, фасады облицованы кирпичом, а конструкция основана на прочном железобетонном каркасе с монолитными перекрытиями. Кровля выполнена по классической схеме с использованием металлочерепицы. Каждый подъезд оснащен пассажирским лифтом. В проекте представлены квартиры с 1 и 2 комнатами с продуманными планировками. В помещениях установлены стеклопакеты Rehau стандартного размера, а высота потолков составляет от 2,96 до 2,98 метров. В отделке использован формат подчистовой подготовки: выполнена разводка электрики и воды, вмонтированы радиаторы отопления, теплые водяные полы, газовый котел и видеодомофон. Все лоджии утеплены, застеклены и оштукатурены, что делает их пригодными для круглогодичного использования. Проект ориентирован на комфортное и безопасное проживание с учетом потребностей семей с детьми. Объект находится на закрытой территории с круглосуточной охраной и видеонаблюдением. Для жителей предусмотрены спортивные и детские площадки с безопасным прорезиненным покрытием. На территории также организована стоянка для владельцев авто. Комплекс расположен в селе Агой Туапсинского района, в 15 минутах транспортом от центра Туапсе. В пределах 510 минут пешком находятся детский сад, школа, колледж, медицинский центр, аптеки и супермаркеты. До пляжа на берегу Черного моря можно добраться за 10 минут транспортом.

О квартире

Тип жилья

Новостройка

Общая площадь

43,48 м²

Жилая площадь

19,3 м²

Площадь кухни

10,5 м²

Высота потолков

2,96 м

Санузел

1 раздельный

Балкон/лоджия

1 лоджия

Вид из окон

На улицу

Отделка

Предчистовая

О доме

Тип дома

Монолитный

Понравилась квартира — узнайте о ней больше

Застройщик ответит на все вопросы

Отделка квартиры

Предчистовая — остаётся установить сантехнику, розетки, двери и навести красоту: поклеить обои и уложить на пол покрытие

Отделка в ЖК

  • Предчистовая
  • Черновая
Похоже на то, что вы ищете?

Акции в ЖК «Новый Агой»

Узнайте про персональные условия и дополнительные скидки при покупке квартиры у застройщика
Ипотечный калькулятор
  • Базовая
  • Семейная
  • ИТ-ипотека
  • 20%
  • 30%
  • 40%
  • 50%
лет
  • 10 лет
  • 20 лет
  • 30 лет
Загружаем предложения от застройщика и банков

Ещё квартиры в жилом комплексе

18 квартир в продаже · Сдан
Агентство недвижимости
Магазин новостроек
  • 5 лет 3 месяца на Циане
  • 9 030 000 ₽
    Цена за метр
    207 682 ₽/м²
    Условия сделки
    свободная продажа
    Бесплатно найдём новостройкуИ поможем на сделке
    Агентство недвижимости
    Магазин новостроек