Мы используем куки-файлы. Соглашение об использовании
Только на Циан
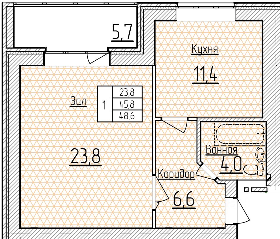
Общая площадь48,6 м²
Жилая площадь23,8 м²
Площадь кухни11,4 м²
Этаж1 из 5
Год сдачи2026
ДомНе сдан
ОтделкаЧистовая
ИПОТЕKA 6% — BОЗМОЖНОСTЬ ПРИOБРECТИ ЖИЛЬЁ С МАТЕРИНСКИМ КАПИТАЛОМ В ПЕРВЫЙ ВЗНОС! ВСE CПOСOБЫ OПЛАTЫ! Ищете семейное жилье в Кропоткине без компромиссов? ЖК "Фестивальный" — это 5-этажные кирпичные дома с панорамными окнами, дизайнерскими холлами и собственной территорией для жизни с комфортом. Здесь всё продумано для семей: детская и спортивная площадки, дополнительная парковка и видеонаблюдение. Рядом: школы, сады, магазины, парк, транспорт. До центра — 5 минут. Квартиры в предчистовой отделке. Автономное газовое отопление и энергоэффективность — экономия и независимость от сезонных отключений. ЖК "Фестивальный" — когда забота о семье начинается с выбора квартиры.

О квартире

Тип жилья

Новостройка

Общая площадь

48,6 м²

Жилая площадь

23,8 м²

Площадь кухни

11,4 м²

Высота потолков

2,7 м

Санузел

1 совмещенный

О доме

Тип дома

Кирпичный

Похоже на то, что вы ищете?
Ипотечный калькулятор
  • Базовая
  • Семейная
  • ИТ-ипотека
  • 20%
  • 30%
  • 40%
  • 50%
лет
  • 10 лет
  • 20 лет
  • 30 лет
Загружаем предложения от застройщика и банков
Корпус проверен наш.дом.рф
Обновлено 21 марта 2024
  • Нет в реестре проблемных объектов
  • Застройщик не банкрот
  • Есть эскроу счёт

Ещё квартиры в жилом комплексе

42 квартиры в продаже · Сдача в 3 кв. 2026
Консультант
Циан
  • 5 лет 11 месяцев на Циане
  • 28716 объявлений
  • 5 005 800 ₽
    Цена за метр
    103 000 ₽/м²
    Условия сделки
    долевое участие (214-ФЗ)
    Консультант
    Циан