Мы используем куки-файлы. Соглашение об использовании
С мебелью

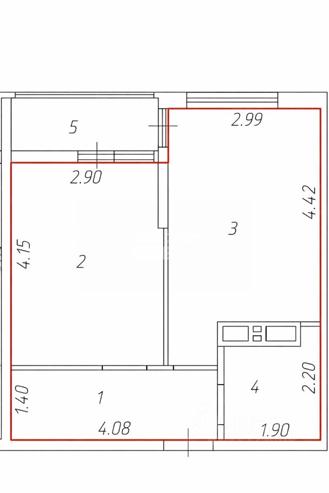
Продается 1-комн. квартира, 35,5 м²

Общая площадь35,5 м²
Жилая площадь13 м²
Площадь кухни13 м²
Этаж13 из 16
Год постройки2024
Арт. 134146397 Уютная квартира с удобной планировкой и потенциалом перепланировки. Продаётся светлая и функциональная квартира площадью 35,5 м² с продуманной планировкой. Отличный вариант как для проживания, так и для инвестиций под аренду. Квартира включает в себя просторную жилую комнату правильной формы, отдельную кухню, удобную прихожую и совмещённый санузел. Также есть балкон, который можно использовать как дополнительное пространство для отдыха или хранения. Планировка позволяет грамотно зонировать пространство или при желании реализовать современный формат "евро-двушки" с кухней-гостиной и отдельной спальней. Квартира светлая, с хорошей геометрией помещений, что даёт возможность легко реализовать любой дизайн-проект. Преимущества:\ — удобная планировка — изолированные зоны — балкон — подходит под аренду — хороший потенциал для перепланировки Отличный вариант для: — собственного проживания — сдачи в аренду — инвестиций Звоните, отвечу на все вопросы и организую показ в удобное время.
Позвоните автору
Вам ответят на все вопросы

О квартире

Тип жилья

Вторичка

Общая площадь

35,5 м²

Жилая площадь

13 м²

Площадь кухни

13 м²

Высота потолков

2,6 м

Санузел

1 совмещенный

Балкон/лоджия

1 балкон

Вид из окон

Во двор

Ремонт

Дизайнерский

Продаётся с мебелью

Да

О доме

Год постройки

2021

Строительная серия

Индивидуальный проект

Количество лифтов

1 пассажирский

Тип перекрытий

Железобетонные

Подъезды

2

Парковка

Наземная

Отопление

Центральное

Аварийность

Нет

Спросите умного помощника
Получите экспертное мнение о жилье

Расположение

Ипотечный калькулятор
  • Базовая
  • Семейная
  • ИТ-ипотека
  • 20%
  • 30%
  • 40%
  • 50%
лет
  • 10 лет
  • 20 лет
  • 30 лет
Загружаем предложения от застройщика и банков
Помощь риелтора
Проверенный риелтор поможет купить или продать квартиру
РиелторСамолет ПЛЮС
Документы проверены
4 700 000 ₽
Цена за метр
132 394 ₽/м²
Условия сделки
свободная продажа
Ипотека
возможна
Агентство недвижимости
Документы проверены
На Циан
7 лет
Объектов в работе
41