Мы используем куки-файлы. Соглашение об использовании
С мебелью
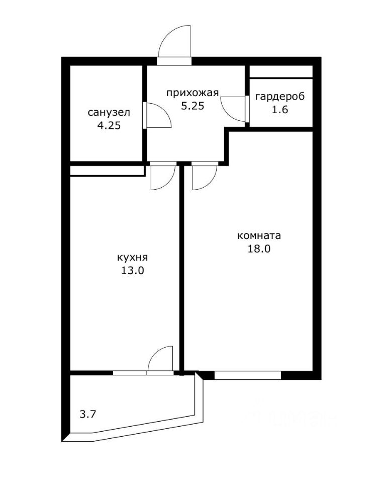
Общая площадь42 м²
Жилая площадь19 м²
Площадь кухни12 м²
Этаж18 из 20
Год постройки2015
ПРОДАМ ВИДОВУЮ КВАРТИРУ | ФЕСТИВАЛЬНЫЙ МКР | ЖК РЕПИНА 5 Монолитно-кирпичный дом — стандарт надежности и престижа. Повышенная шумоизоляция, солидная конструкция и долговечность. Жилой фонд фестивального района, который выбирают за комфорт и статус. Один из самых востребованных районов города. Развитая инфраструктура, садики, школы, парки - всё в пешей доступности. ХАРАКТЕРИСТИКИ КВАРТИРЫ Общая площадь — 42 м² Просторная кухня — 13 м² Светлая комната — 18 м² Косметический ремонт, но заезжать и жить можно сразу. Вам не потребуется срочный бюджет на отделку. Всё функционально и аккуратно. Из окон открывается панорама, за которую ценят квартиры в этом районе. Свет, воздух и эстетика каждый день. В квартире один взрослый собственник. Максимально прозрачная сделка. Без долей, без детей, без обременений. Показываю по договоренности. Звоните. доп.оплачивается комиссия с покупателя. 1016706724
Позвоните автору
Вам ответят на все вопросы

О квартире

Тип жилья

Вторичка

Общая площадь

42 м²

Жилая площадь

19 м²

Площадь кухни

12 м²

Высота потолков

2,8 м

Санузел

1 совмещенный

Балкон/лоджия

1 балкон

Вид из окон

Во двор

Ремонт

Евроремонт

Перепланировка

Не было

Продаётся с мебелью

Да

О доме

Год постройки

2015

Количество лифтов

1 пассажирский, 1 грузовой

Тип дома

Кирпичный

Тип перекрытий

Железобетонные

Подъезды

4

Отопление

Центральное

Аварийность

Нет

Юридические особенности

Несовершеннолетние собственники

Нет

Материнский капитал при покупке

Не использовался

Спросите умного помощника
Получите экспертное мнение о жилье

Расположение

Ипотечный калькулятор
  • Базовая
  • Семейная
  • ИТ-ипотека
  • 20%
  • 30%
  • 40%
  • 50%
лет
  • 10 лет
  • 20 лет
  • 30 лет
Загружаем предложения от застройщика и банков
Помощь риелтора
Проверенный риелтор поможет купить или продать квартиру
6 299 000 ₽
Цена за метр
149 976 ₽/м²
Условия сделки
свободная продажа
Ипотека
возможна
Агентство недвижимости
Документы проверены
На Циан
7 лет
Объектов в работе
более 1000