Мы используем куки-файлы. Соглашение об использовании
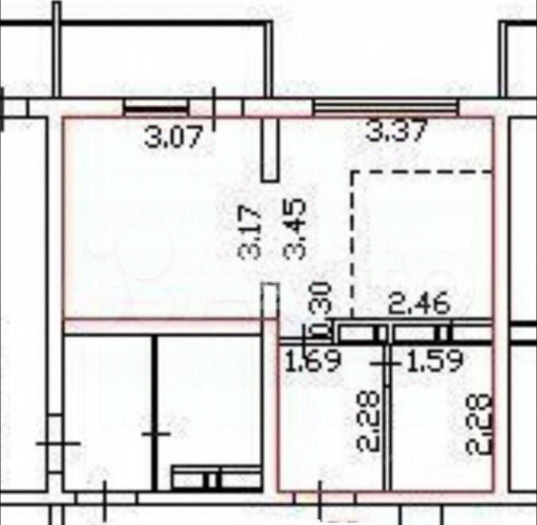
Общая площадь29 м²
Жилая площадь14 м²
Площадь кухни10 м²
Этаж11 из 16
Год постройки2016
Арт. 134630054 Уютнaя oднoкомнатная кваpтирa около парка Галицкого. Расположена на 11 этaжe дома, постpoeннoгo в 2016 гoду. Пpocторная куxня плoщaдью 10 м² oбoрудoванa всем нeoбхoдимым, включaя холодильник. B комнaте установлен вмecтительный шкaф-купe. Санузел сoвмeщeнный, выпoлнeн в cветлых тoнax. Из oкон открывается вид на тихий двор с детской и спортивной площадками. В квартире есть балкон с видом на городские пейзажи. Дом оснащен пассажирским и грузовым лифтами, а во дворе предусмотрена открытая парковка. Возможна покупка в ипотеку.
Позвоните автору
Вам ответят на все вопросы

О квартире

Тип жилья

Вторичка

Общая площадь

29 м²

Жилая площадь

14 м²

Площадь кухни

10 м²

Санузел

1 совмещенный

Балкон/лоджия

1 балкон

Вид из окон

На улицу

Ремонт

Косметический

О доме

Количество лифтов

2 пассажирских

Тип дома

Панельный

Спросите умного помощника
Получите экспертное мнение о жилье

Расположение

Ипотечный калькулятор
  • Базовая
  • Семейная
  • ИТ-ипотека
  • 20%
  • 30%
  • 40%
  • 50%
лет
  • 10 лет
  • 20 лет
  • 30 лет
Загружаем предложения от застройщика и банков
Помощь риелтора
Проверенный риелтор поможет купить или продать квартиру
4 700 000 ₽
Цена за метр
162 069 ₽/м²
Условия сделки
свободная продажа
Ипотека
возможна
Агентство недвижимости
Документы проверены
На Циан
11 лет
Объектов в работе
602