Мы используем куки-файлы. Соглашение об использовании

Продается 1-этажный дом, 113,65 м²

Общая площадь113,65 м²
Участок5 сот.
Материал домаКирпичный
Этажей в доме1
Год постройки2026
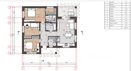
Дом в Горячий Ключ. Общая площадь 113,65 м2, в доме три комнаты 13,10+12,22+16.57 м2, столовая-гостиная 27,81 м2 с выходом на террасу 11,06 м2, две гардеробные, два санузла. Наружные несущие стены - из керамического камня Poromax толщиной 380 мм, кладочный раствор 10 мм, кирпич облицовочный Terca Kashtan половинка 215x30x65(h) мм. Толщина стены 420 мм. Фундамент - свайно-ростверковый. Внутренние стены несущие из кирпича полнотелого толщиной 250 мм. Перегородки из полнотелого кирпича толщиной 120 мм. Крыша - многоскатная. Покрытие металлочерепица. Водосточная система пластиковая. Окна - ПВХ/ алюминиевые с двойным остеклением. Двери - входная - металлическая/металлопластиковая Коммуникации все центральные подключены свет, газ, вода, канализация. Земельный участок 5,0 сот. ИЖС, ровный, правильной формы, огорожен. Вся городская инфраструктура рядом магазины, банки, рынок, поликлиника, общественный транспорт. Школа, детский сад.
Позвоните автору
Вам ответят на все вопросы

О доме

Площадь

113,7 м²

Материал дома

Кирпичный

Состояние дома

Нужен ремонт

Количество этажей

1

Количество спален

3

Год постройки

2026

Об участке

Площадь

5 сот.

Категория земель

Земли населённых пунктов

Статус участка

Индивидуальное жилищное строительство

Коммуникации и удобства

Санузел

1 в доме

Канализация

Центральная

Водоснабжение

Центральное

Отопление

Автономное газовое

Электричество

Есть

Газ

Магистральный в доме или на участке

Дополнительно

Терраса

Спросите умного помощника
Получите экспертное мнение о жилье

Расположение

Подпишитесь на объявления в этой локации
Мы сообщим, как только поблизости появится что‑нибудь новенькое
Ипотечный калькулятор
  • Базовая
  • Семейная
  • ИТ-ипотека
  • 20%
  • 30%
  • 40%
  • 50%
лет
  • 10 лет
  • 20 лет
  • 30 лет
Загружаем предложения от застройщика и банков
РиелторЛюдмила Саламатова
Суперагент
  • 5,0・10
  • 10 лет 3 месяца на Циане
  • 27 объявлений
  • Хотите продать недвижимость?Разместите объявление на ЦианРазместить
    15 000 000 ₽
    Цена за метр
    131 984 ₽/м²
    Условия сделки
    свободная продажа
    РиелторЛюдмила Саламатова
    Суперагент