Мы используем куки-файлы. Соглашение об использовании
Общая площадь81,1 м²
Участок5 сот.
Материал домаГазобетонный блок
Этажей в доме1
Год постройки2024
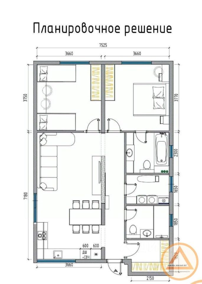
СРОЧНАЯ ПРОДАЖА! Новый дом 2024 г. в Джубге. Цена ниже рынка! Продам одноэтажный дом под ключ (без внутренней отделки) в курортном поселке Джубга, Туапсинский район. Подходит для ПМЖ или дачи. Характеристики: Площадь дома: 81,1 кв.м. Участок: 5 соток (ровный, прямоугольник). Планировка: 2 изолированные спальни, 2 с/у, кухня-гостиная, гардеробная, терраса. Коммуникации: Свет, центральная вода, септик — подведены к дому. Газ на границе участка (магистраль рядом). Для автомобилей: парковка на 2 машины, хороший подъезд. Локация: До моря 2,5 км, магазины/аптеки — 1,5 км. Расчет: Любые формы оплаты. Поможем с юридическим сопровождением сделки. Звоните!
Позвоните автору
Вам ответят на все вопросы

О доме

Площадь

81,1 м²

Материал дома

Газобетонный блок

Количество этажей

1

Год постройки

2024

Об участке

Площадь

5 сот.

Категория земель

Земли населённых пунктов

Коммуникации и удобства

Канализация

Есть

Водоснабжение

Центральное

Электричество

Есть

Спросите умного помощника
Получите экспертное мнение о жилье

Расположение

Подпишитесь на объявления в этой локации
Мы сообщим, как только поблизости появится что‑нибудь новенькое
Ипотечный калькулятор
  • Базовая
  • Семейная
  • ИТ-ипотека
  • 20%
  • 30%
  • 40%
  • 50%
лет
  • 10 лет
  • 20 лет
  • 30 лет
Загружаем предложения от застройщика и банков
Хотите продать недвижимость?Разместите объявление на ЦианРазместить
7 500 000 ₽
Цена за метр
92 478 ₽/м²
Ипотека
возможна
Агентство недвижимости