Хорошая цена
3.3 км от центра города
Протока
11 минут на транспорте
4 800 000 ₽
115 385 ₽/м²
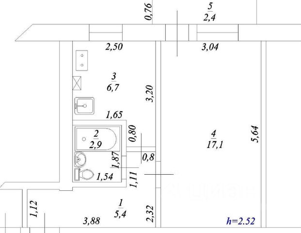
Продам квартиру,в зелёном экол.чистом месте Усадьба Сада Гигант.до центра города Славянск на Кубани 10 мин.пешком.Рядом река,пляжи,в шаговой доступности спортивные и детские площадки,сетевые магазины 2 парка во дворе удобная парковка.прекрасный вид из окна на Храм Александра Невского.Школы,дет.сад.поликлиника в двух мин.Квартира не угловая,светлая,теплая,дом кирпичный.Широкая лоджия.Коммун.платежи низкие.зимой не более двух тысяч.Индивидуальное отопление.Спокойные соседи.До Азовского моря 60 км.до Черного моря 65 км.Остается вся мебель и бытовая тех.заходи и живи.Один собственник.хороший торг. Купить 1-комнатную квартиру до 6 млн. рублей в Славянске-на-Кубани.







































































