Хорошая цена
Горячий Ключ
4 минуты на транспорте
6 100 000 ₽
150 246 ₽/м²
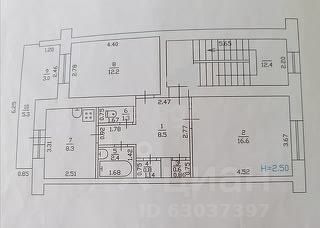
Продается уютная 1-комнатная видовая квартира в центре Горячего Ключа на 10 этаже 12-тиэтажного дома !
Общая площадь - 40,6 кв.м
Жилая площадь - 18,7 кв.м
Площадь кухни - 9,4 кв.м
Санузел раздельный
Гардеробная.
Преимущества предложения: дом расположен в центре города, все социально значимые объекты в шаговой доступности : СОШ 3, Д/С 3, магазины, аптеки, остановки общественного транспорта.
Квартира подходит под все виды расчетов!
Звоните! Спешите стать счастливым владельцем данного предложения!
id 116964598
Арт. 116964598










































































