


187 400 ₽/м²
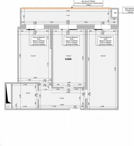
DOGMA - ТОП-3 застройщик по объему строительства в РФ. В продаже 1-комнатная квартира от застройщика! ЖК "Парк Победы 2", г. Краснодар, Литер 7 Срок сдачи: 2 кв. 2026, общей площадью 38.6 кв.м., на 14 этаже. Концептуально новый микрорайон "ПАРК ПОБЕДЫ" это статная архитектура, вдохновленная наследием страны. Уникальное культурное пространство в стиле сталинского ампира, который отличает монументальность, классические пропорции и четкость линий. •Безбарьерная среда •Сквозные подъезды •Авторские лобби •Видовые квартиры с панорамным остеклением •Квартиры с мастер-спальнями и отдельными гардеробными •Потолки 3 метра •Улучшенная отделка от застройщика •Подземный паркинг и кладовые •Дворы без машин с видеонаблюдением •Круглосуточный пост охраны •Школа для 1 550 учеников •4 детских сада •Уличные тренажёры, зоны для пинг-понга и йоги •Крытый боксёрский ринг •Собственный пешеходный бульвар •Прогулочные аллеи с фонтаном •Коммерческие помещения на первых этажах Приобрести квартиру можно одним из способов: -субсидированная семейная ипотека 4,5 % на весь срок -рассрочка до конца строительства -оплата наличными -дистанционная покупка Позвоните сейчас и забронируйте квартиру со скидкой!



























































































