Локация: Краснодар, Центральный район, улица Коммунаров — сердце города, в шаговой доступности от Кооперативного рынка, главной пешеходной улицы Красной, сквера "Жукова" и Театра Драмы. Это место с богатой историей и уникальной атмосферой старого Краснодара.
О квартире:
Продается просторная двухкомнатная квартира в доме с вековой историей. Отличный вариант для тех, кто ценит центр города, хочет жить на земле и создать пространство под себя!
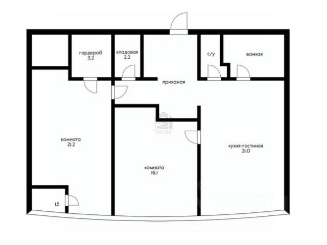
Площадь: 67.1 / 31.8 / 12 кв.м (общая/жилая/кухни). Очень просторные комнаты!
Планировка: изолированная — комнаты раздельные, максимум приватности.
Санузел: один совмещенный
Этаж: 1 из 1 (отдельно стоящий дом, всего один этаж) — квартира на земле, полная автономия, нет соседей сверху и снизу.
Окна: выходят во двор, установлены стеклопакеты.
Ремонт и состояние: удовлетворительное — отличная возможность сделать дизайнерский ремонт по своему вкусу. В квартире уже есть: кухонный гарнитур, встроенные шкафы, спальные места, стиральная машина, водонагреватель. Установлена надежная железная дверь.
Коммуникации: в доме есть газ.
О доме и территории:
Дом старого фонда, кирпичный, 1918 года постройки. Это дом с историей — одна из старых построек Краснодара, формирующих неповторимый облик центра города.
Частичка домовладения на трех хозяев. Соседей всего двое — тихие, спокойные люди.
Свой кусочек перед входом — личное пространство на улице, можно поставить цветы или небольшой столик.
Свое парковочное место во дворе — удобно для автомобилистов.
Закрытая территория — безопасность и приватность.
Высота потолков: 2.75 м.
Инфраструктура и транспорт:
Центральный район — это сердце Краснодара, где есть абсолютно всё для комфортной городской жизни:
Рынок: Кооперативный рынок — легендарное место, где можно купить свежие фермерские продукты, сыры, мясо, овощи и фрукты, а также товары для дома.
Театр: Театр Драмы — главная театральная сцена города, до которого легко дойти пешком.
Прогулки: главная пешеходная улица Красная, сквер "Жукова" — всё в нескольких минутах ходьбы.
Исторический ориентир: дом Киор-Оглы — архитектурная достопримечательность рядом.
Транспорт: трамвайная остановка прямо перед воротами — невероятное удобство для передвижения по центру и в другие районы.
Инфраструктура: школы, детские сады, аптеки, кафе, рестораны — всё в шаговой доступности.
Юридические детали:
Квартира в собственности.
Обременений не найдено.
Документы полностью готовы к сделке.
Подходит под ипотеку.
Звоните или пишите прямо сейчас, чтобы узнать подробности и записаться на просмотр! Покажу квартиру в удобное для вас время. Редкий вариант в самом центре города с большой площадью, отдельным домом, рядом с трамвайной остановкой, своим парковочным местом и кусочком земли перед входом!