110 987 ₽/м²
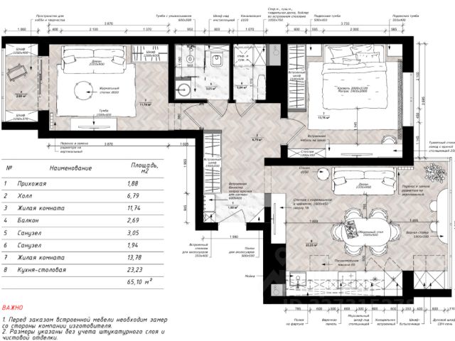
Продаётся 2-комнатная квартира 44,6 кв.м + лоджия в ЖК "Олимп" (Краснодар, ул. Домбайская, 10/2) Идеальное расположение всё рядом Остановка общественного транспорта в шаговой доступности. Автобусы и маршрутки довезут до любой точки города без пересадок. Школы и детские сады несколько вариантов в пешей доступности. Рядом есть новый современный детский сад, что важно для семей с детьми. Магазины и сервисы "Магнит", "Пятёрочка", Fix Price, аптеки, салоны красоты, кофейни. Всё для жизни без машины. Парковки во дворе достаточно места для автомобиля (гостевая парковка, стихийная но можно уточнить наличие гаража или машиноместа дополнительно). Жилой комплекс "Олимп" закрытая территория КПП и видеонаблюдение безопасность 24/7. Закрытый двор без транзитного транспорта, дети гуляют спокойно. Благоустройство газоны, деревья, детские и спортивные площадки, лавочки. 15-й этаж отличные вид и инсоляция, нет лифтового шума сверху, свежий воздух, летом меньше комаров. О самой квартире свобода и пространство Общая площадь: 44,6 кв.м. Плюс лоджия дополнительное полезное пространство (туалет, кладовая, рабочий уголок). Предчистовая отделка стяжка, штукатурка, разведённая электрика и сантехника. Вам не нужно сбивать старую плитку или ломать стены. Делайте ремонт на свой вкус без лишних затрат на демонтаж. Свободная планировка никаких несущих стен внутри (уточнить по техпаспорту, но обычно в новостройках так). Можно сделать: евродвушку с большой кухней-гостиной; классическую изолированную кухню и комнаты; две полноценные спальни + зону кабинета на лоджии; гардеробную или дополнительный санузел. Технические преимущества Высокие потолки (или уточните реальную высоту обычно 2,753 м) ощущение воздуха и простора. Хорошая шумоизоляция между квартирами (стеновые блоки качественные, застройщик ЖК "Олимп" проверенный). Пластиковые окна или остекление лоджии (уточните, но обычно в предчистовой уже окна есть). Панорамное остекление много света. Для кого этот вариант Молодая семья сад и школа рядом, закрытый двор. Инвестор высокий спрос на аренду в этом районе (рядом бизнес-центры, развязки, всё быстро сдаётся). Переезд из "хрущёвки" вы получаете современное пространство без соседей за тонкой стеной. Свой офис/студия свободная планировка позволяет оборудовать зону для работы. Коммуникации и удобства Отопление центральное (или индивидуальное? уточните, обычно в многоэтажках центральное). Счётчики можно поставить. Горячая вода круглогодично (централизованная). Электричество увеличенная мощность (до 1015 кВт уточните, для современной техники хватит). Лифты два (грузовой и пассажирский), исправные, новые. Почему стоит купить именно сейчас Цена ниже рыночной на 510% (если это правда укажите вашу цену и сравните с соседними). Предчистовая вы экономите 23 месяца и 200300 тыс. руб. на демонтажных работах. 15 этаж никто не будет топать над головой, а вид с балкона добавляет ликвидности. Что










































































