102 500 ₽/м²
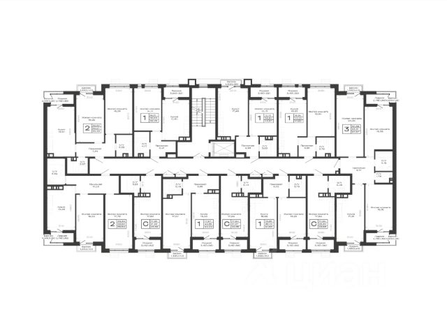
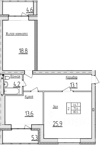
Продаётся 2-комнатная квартира в сданном доме (Корпус 1), срок сдачи: IV-кв. 2024, общей площадью 55.36 кв.м., на 6 этаже. РАСПОЛОЖЕНИЕ Жилой комплекс Романовский расположился в одном из лучших районов Кропоткина - в Микрорайоне 1. Чистый воздух, много зелени, удобная транспортная развязка. Всего в пяти минутах от дома красивый сосновый бор, в котором гулять одно удовольствие! Практически во дворе дома находится школа 7 и детский сад. Рядом с домом магазины, аптеки, детский развлекательный центр, фитнес-клуб, салоны красоты, пункты выдачи интернет-заказов. ОТДЕЛКА В квартире вас ждет качественный ремонт под ключ: • Металлическая входная дверь с надежным замком и фурнитурой • Стильные межкомнатные двери • Матовые натяжные потолки • Плотные виниловые обои пастельных тонов • Санузел под ключ: ванна с декоративным экраном, удобная раковина, смесители, полотенцесушитель. На полу керамогранит. • Установлены все радиаторы, выключатели и счетчики • Балкон и лоджия остеклены КОМФОРТ Вы непременно оцените удобные входные группы на уровне земли - вам не придётся подниматься с коляской или с тяжелыми пакетами по ступенькам - всего пару шагов, и вы в подъезде. Просторные и светлые лифтовые холлы, безопасные и бесшумные лифты. Уютный двор, в котором находятся детские и спортивные площадки с прорезиненным безопасным покрытием, уличные тренажеры, развивающие аттракционы, а также комфортные зоны отдыха. В таком дворе приятно отдыхать или заниматься спортом взрослым и очень интересно играть детям. ГИБКИЕ ВАРИАНТЫ ПРИОБРЕТЕНИЯ • ИПОТЕКА СЕМЕЙНАЯ • IT-ИПОТЕКА • СПЕЦ.ПРОГРАММА "ИПОТЕКА ДЛЯ МЕДИЦИНСКИХ И ПЕДАГОГИЧЕСКИХ РАБОТНИКОВ" • РАССРОЧКА С ВОЗМОЖНОСТЬЮ ЗАСЕЛЕНИЯ • НАЛИЧНЫЙ РАСЧЕТ (предоставляется скидка) • МАТЕРИНСКИЙ КАПИТАЛ • ВСЕ ВИДЫ СЕРТИФИКАТОВ Звоните или приезжайте, и мы проведем для вас экскурсию, покажем квартиры и район и поможем подобрать комфортные условия покупки этой квартиры.










































































