


189 700 ₽/м²
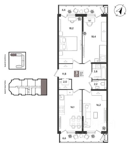
В продаже 3-к квартира от застройщика! ЖК "Рекорд" 2 очередь, г. Краснодар, Литер 1. Срок сдачи: 2 кв. 2026, общей площадью 88.8 кв.м., на 2 этаже. Жилой Комплекс "РЕКОРД" - место вашего баланса. Город снаружи природа внутри. Квартал с максимумом возможностей для хорошо сбалансированной жизни. Расположен в оживленном благоустроенном районе города. Сочетает в себе и жилую застройку, и торгово-деловые центры. Здесь все под рукой, здесь центр городских событий. • Уникальная локация центр города • Современная архитектура • Панорамные виды • Двухуровневые квартиры с камином и террасой • Элегантные входные группы • Архитектурная подсветка фасадов • Школа во дворе (1550 мест) • Детский сад во дворе (110 мест) • Двор без машин • Подземный паркинг и гостевые парковки • Круглосуточный пост охраны • Медицинский центр • Фитнес центр • Система "умный дом" • Баскетбольная и универсальная спортивные площадки • Современные развивающие детские игровые площадки • Ресторанный дворик с аллеей и фонтаном • Храм с уникальной архитектурой • Премиальные лифты с подсветкой и музыкой • Звукоизоляционные окна • Зарядные устройства для электромобилей • Ароматизация мест общего пользования • Элегантные входные группы • Дизайнерские лобби • Консьерж сервис • Сквозные подъезды • Кладовки • Кондиционирование холлов • Благоустройство территории с Арт объектом • Воркаут-зоны • Зона коворкинга Приобрести квартиру можно одним из способов: -субсидированная семейная ипотека 4,5 % на весь срок -рассрочка до конца строительства -оплата наличными -дистанционная покупка Позвоните сейчас и забронируйте квартиру со скидкой!


























































































































