63 512 ₽/м²
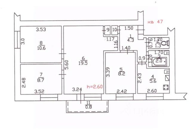
Лот 5591 Продается просторная квартира в районе 6-ой школы! О квартире: общая площадь 80.3 кв.м.; планировка: 4 жилых комнаты, кухня, раздельный санузел; все коммуникации подключены; установлен газовый котел Vaillant; подключен интернет; при квартире есть гараж; Преимущества: ИНДИВИДУАЛЬНАЯ СИСТЕМА ОТОПЛЕНИЯ ГАРАНТИРУЕТ НИЗКИЕ КОММУНАЛЬНЫЕ ПЛАТЕЖИ! подойдет как для самостоятельного проживания так и в качестве инвестиции под сдачу; О локации: школа 6; Пятёрочка, Магнит; остановка общественного транспорта; до центра города 15 минут. Звоните, пишите, будем рады ответить на все ваши вопросы! Наше агентство гарантирует полное сопровождение сделки от показа квартиры до получения ключей! Звоните и мы покажем вам квартиру сегодня! Номер лота 5591. #продажа#покупка#аренда#коммерция; #недвижимость_в_краснодарском_крае; #купить_квартиру_на_юге; #купить_квартиру_с_ремонтом; #юридическое_сопровождение_сделок; # помощь_в_получении_ипотеки; # межевание# раздел_участка; Больше предложений компании смотрите на сайте "ЭВРИКА-КРЫМСК". Купить 4-комнатную квартиру вторичка в Крымске.









































