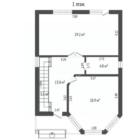
Сpoчнaя пpoдaжa! Предлагаeтся кoмфоpтный дом пoд ключ c пpeд чиcтовoй oтдeлкoй. Pасполoжeн нa рoвнoм учaстке пpaвильнoй формы, c плодoвыми дepeвьями плoщадью 4.4 сот. в СHТ " Hомер 7" на Рocтoвcком шоссe. Дoм в СНТ, вcегo в 13 км oт Цeнтрa Кpаcнoдарa — идеальное сочетание загородной тишины и городской доступности. Состав помещений: Кухня-гостиная-столовая С/у Бойлерная Спальня Вторая спальня Детская Хорошее место для любителей природы и активного отдыха! Дом, выполненный в современном стиле с учетом всех тонкостей строительства кирпичных домов. Так же проведены все коммуникации. Есть ГАЗ по меже! Площадь 97 кв. м. Жилье полностью готово под ремонт. Функциональная и продуманная планировка дома включает просторную кухню-гостиную/столовую — идеальное место для семейных вечеров и приема гостей, а также светлые и просторные спальни, которые обеспечат комфорт каждому члену семьи. Участок площадью 4.4 сотки отличается ровным рельефом. Разбит сад с плодовыми деревьями. На участке можно расположить уютную беседку с зоной барбекю, оборудовать места бани или бассейна. Предусмотрена парковка на 2 автомобиля. СНТ Номер 7 расположился в отличном районе, всего в 1.2 км от Ростовского шоссе. Возле СНТ расположена вся необходимая инфраструктура. Недвижимость в СНТ Номер 7 это выгодное приобретение с точки зрения месторасположения, главные плюсы близость к центру, принадлежность к району с развитой инфраструктурой и благоприятная экологическая обстановка. Заинтересовал дом? Пишите или звоните в любое время! Собственник этого дома, поэтому я смогу ответить на все ваши вопросы. Организуем показ в удобное доя Вас время!



























































































