


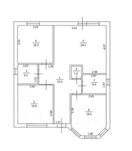
Срочная продажа! Без комиссий! Помощь в открытии ипотеки. Дом построен в 2024 году. Расположен по адресу :посёлок Южный, улица Водозаборная. Площадь дома 98 кв.м , на участке 4,5 сотки. В доме 3 комнаты и большая кухня гостиная. Выполнен дизайнерский ремонт из качественных материалов в светлых тонах. Совмещенный и вместительный санузел , с вентиляционным окном и хорошей сантехникой . В местах общественного пользования сделан теплый пол ( кухня-гостиная , санузел, коридор). Есть вход на крышу , где можно сделать 2 полноценные комнаты. Дополнительные фото отправим по запросу. Участок правильной формы, сделана отмостка по периметру дома, есть место под заезд двух машин. Забор сделан из евроштакетника , откатные ворота. Облицован дом керамическим кирпичом, с эркером. Большая придомовая территория. Из коммуникаций в доме есть : свет 15 кв, газ проходит по меже , скважина. Инфраструктура района развита. Остановки общественного транспорта в 5 минутах ходьбы. В пешей доступности есть электричка, на ней до центра города можно добраться за 20 минут. Рядом есть магазины, сетевые и частные. Муниципальные учреждения: новая школа 15 и детский сад 17 . Так же есть частные детские сады. В пешей доступности есть вся необходимая инфраструктура: детские спортивные центры, ярмарки, поликлиники и многое другое. При заезде в поселок работает большой рынок. Звоните или пишите ответим на все Ваши вопросы! С агентами не сотрудничаем, просьба не беспокоить. Показ осуществляется по предварительной договоренности. Купить дом в Динском районе Краснодарского края.




































































































































































