

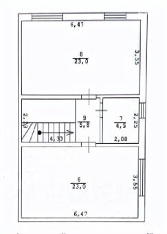
Объект 1621. Продается: 2-х этажный новый дом, общей площадью 120 кв.м. , на участке 3,5 сот. Планировка: кухня-гостиная, 4 спальни, 2 санузла. Выполнена предчистовая отделка, радиаторы отопления, система "Теплый пол", газовый котел. Коммуникации: Центральный водопровод, свет и газ, канализация (септик). Земельный участок: Участок 3,5 сот., заезд под авто, откатные ворота, забор. Расположение: В тихом месте станицы. По улице ходит школьный автобус. Прекрасный выбор для Вас и вашей семьи! Преимущества: Спокойное место, большой дом за небольшой бюджет. Добавьте это объявление в избранное, чтобы не потерять! Звоните, отвечу на интересующие Вас вопросы! Дом в станице Новотитаровская Динского района.































































































































