Только на Циан
Сады
8 минут на транспорте
9 500 000 ₽
В продаже — новый коттедж на завершающей стадии готовности в микрорайоне Российский, Прикубанский округ города Краснодара.
Дом можно приобрести с использованием средств льготной ипотеки!
Дом возведен на свайно-ростверковом фундаменте, материал стен — газоблок, наружные — облицовочный кирпич, кровля — металлочерепица, металлопластиковые окна, входные двери.
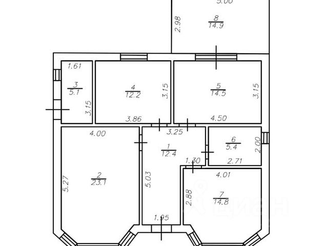
Дом площадью 90 кв.м следующей планировки: холл 10,4 кв.м, совмещенный санузел 5,7 кв.м, три изолированные комнаты, кухня-гостиная 27,5 кв.м с выходом на задний двор, котельная 2,7 кв.м.
Дом — в предчистовой отделке.
Коммуникации: вода — скважина 30 м, канализация — септик 8 куб.м, свет — электричество 15 кВт, возможно подключение газа, улица газифицирована.
Дом расположен на 4 сотках земли, назначения ИЖС.
Участок огорожен по периметру забором, откатные ворота, калитка.
Дом готов. Ведутся работы по предчистовой отделке, установке забора.
Льготная ипотека,













































































