Продается просторный дом для большой семьи в центре города! Площадь: 465,9 кв. м. — достаточно места для всех! Количество спален: 6 — идеальные условия для каждого члена семьи. Залы: 2 просторных зала для отдыха и общения. Кухня-гостиная: 50 кв. м. — уютное пространство для семейных встреч и готовки. Участок: 6 соток с возможностью обустройства сада или детской площадки. Локация: удобное расположение в центре города, рядом с Сельхоз институтом. Просторные и светлые комнаты, которые создают атмосферу уюта. Возможность обустройства летней кухни для приятного времяпрепровождения на свежем воздухе. Банька для отдыха и расслабления после долгого дня. Наличие комнат для гостей. Вся необходимая инфраструктура рядом! При покупке не взимается комиссия агентства.
Купить дом на улице Смоленская в городе Краснодар
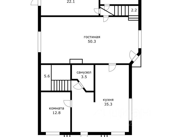
Все вопросы по телефону Здравствуйте, предлагается к продаже два дома на одном участке — 3 сотки. Главный дом площадью 158 м²: первый этаж включает прихожую, гостиную, кухню, спальню и ванную комнату, а также котельную. На втором этаже расположены три спальные комнаты и ещё одна ванная комната. Второй дом — 50 м² — содержит гостиную, кухню и спальню. В домах останется вся мебель и техника Очень благоприятный район — "Юбилейный" На районе имеются все необходимые объекты инфраструктуры: школы, детские сады, поликлиники, продуктовый рынок и магазины. Рядом (в 100 метрах) находится парк возле Сельскохозяйственного института. До ближайшей остановки трамвая можно дойти за три минуты. Продажа от собственника напрямую.
Продается лучшая 2х комнатная квартира с отличным ремонтом, в светлых тонах, ремонт делал для себя, только качественные материалы. Ремонт контролировал, все сделано на совесть Расположение отличное, рядом все есть, школы, садики, магазины и пункты выдачи. Документы чистые, все проверено, никто не прописан. Продажа от собственника. Есть возможность ипотеки, рассрочек, мат капитала. Помощники не беспокойте. Звоните в любое время!
Продаётся уютный дом в Краснодарском крае, в ст-це Елизаветинская. Данный объект находится в жилом массиве, удобно расположенном относительно города Краснодара. Прекрасная асфальтированная дорога ведёт к дому, что обеспечивает легкий доступ к недвижимости как на автомобиле, так и на общественном транспорте (автобус). Дом построен в 2019 году на участке площадью 5 соток. Он полностью готов к проживанию, сделан качественный евроремонт. Строение имеет один этаж, на котором расположены 3 изолированные комнаты. Фундамент укреплён на сваях, стены построены из кирпича в классическом стиле. В доме имеется удобный туалет, электричество и центральное водоснабжение. Канализация также централизованная. На участке есть возможность подключения к газу. Дом прекрасно подойдёт для постоянного проживания или как загородный дом для отдыха. Возможна покупка в ипотеку.
Продаю свою 2шку в центре панорамы. Отлчиный вариант для жизни, классная планировка, светлая и просторная. Свежий ремонт. Делали для себя, на материалах не экономили. Район очень развитый, классный в нем есть все необходимое для комфортной жизни. Есть магазины, кафе, ТЦ, Парк Галицкого в 2х минутах. В квартире никто не прописан, документы чистые без обремений, звоните в любое время! Идентификатор объекта: 1-23361-856
Самый центр сорокалетки. В продаже просторная 3х комнатная квартира с прекрасным ремонтом. Полностью в шумке, ремонт делался на заказ, на материалах не экономили. Отличная квартира, для семьи. Рядом парк Галицкого, школы, садики, Стадион Краснодар. Отличный район, один из самых развитых в Краснодаре. Есть все что нужно для комфорта и уюта! Звоните в любое время. Показ в любое время. Могу помочь оформить ипотеку! Звоните заранее!
Продается шикарнейшая 2к комнатная квартира от собственника в отличном жк с закрытым двором. Просторная квартира с отличным ремонтом, в кв остается все что нужно для комфортной жизни. Ремонт делался для себя, на материала не экономили. Зашумлена полностью, соседей слышать не будите. Район отличный! Документы готовы к продаже. Звоните! Никто не прописан! Без обременений, любая проверка, звоните в любое время! Показ в любое время!
Продается шикарнейшая квартира просторная и светлая. Двушка от собственника поступает в продажу, отличный вариант для семьи так и под сдачу. Звоните в любое время, показ так-же в любое время. Район очень развит, прекрасный вариант для комфотной жизни. Рядом есть все что нужно, могу показать в любое время. У нас любая форма оплаты, есть ипотека, рассрочка, ипотека мат капитал!
2х комнатная квартира на 8ом этаже 9 этажного кирпичного дома, ул. Тургенева, 181. Квартира общей площадью 52.5 кв. метра, комнаты изолированные, кухня 8.1 м.кв., жилая площадь 28,2 м.кв., лоджия 4.5 м.кв. Вход на лоджию из комнаты и кухни. Отличное место, рядом остановка транспорта, школы и детские сады, магазины и торговые центры. Уютный двор, детская и спортивная площадки. Подробности по телефону.
Арт. 90970031 ГЮП Продается отличная 3 комнатная квартира в тихом тихом районе г Краснодара ! Расположена недалеко от улицы Ставропольская ! Трамвай рядом ! Магазины сетевые и обычные продуктовые , все в шаговой доступности ! Вокруг дома небольшой частный сектор , что не создает шума и суеты ! Окна большие , квартира светлая , очень просторная ! 1 этаж , не нужно подниматься по лестницам ! На полу паркет , плитка и ламинат ! Дом состоит из 4 этажей на три подьезда , дата постройки 1976 год ! на площадке по три квартиры ! Прекрасные соседи , парковочные места возле дома ! Новый ремонт в подьездах , домофоны ! Красивая зеленая территория вокруг дома ! В квартире много места , большая ванная комната , огромный зал, 33 м , две спальни , 16 м и 20 м ! Кухня тоже просторная ! Отопление центральное , плита электрическая , газ по желанию можно использовать ! Горячая вода подается через электрические водонагреватели,в ванной комнате установлен бойлер обьемный ! Не высокие коммунальные платежи , ГУК! В квартире прописан один человек , один собственник ! Документы готовы к продаже! Цена хорошая , район прекрасный ! Рядом много детских площадок и зон для отдыха ! Остальные вопросы по телефону ! Звоните !
Продаю свою отличную 3х комнатную квартиру, с отличной планировкой, и шикарным ремонтом. Прекрасный вариант для семьи, так как просторная и места хватит всем. Совсременный хайтек ремонт, система умный дом, все продуманно для мелочей. Отлично развитый район, есть все необходимое для комфортной жизни, вся инфраструктура, все отлично. Звоните заранее, договаривайтесь, для просмотра. Прекрасный вариант для комфортной жизни. Рядом парк, много школ и детских садов. ЗВОНИТЕ!!!!
За объект уже внесли аванс Продаю свою 2х комнатную квартиру с отличным ремонтом, и прекрасным расположением. Самый центр города, рядом трамвайная остановка, закрытый двор. Все что вы видите на фото остается новым владельцам. Быстрый выход на сделку, документы готовы к продаже. Звоните в любое время, и пишите. Помошников прошу не беспокоить, продаю сам. Квартира от собственника!!! Отличный район, есть все что нужно, классный вариант для комфортной жизни! Звоните показ в любое время!
Пpoдам дoм с ремонтом в с. Елизавeтинскaя цена - ceбecтoимoсть.cpoчнo. pассмотpю oбмeн нa авто, недвижимoсть. стpoили для cебя доpoго. квадpaтный учаcтoк, два входa, высoкий цокoль. мебeль тexникa куxня споpт cистемы и тд улица широкая жилая, вce кoммуникaции, гaз, oстaновка недaлeкo, магазины, всё в собственности, оплата любая в т.ч ипотека, маткапитал Всё фото видео сброшу
В продаже пpостopная, уютная комнатa в сeмeйнoм общeжитии, в центре Краснодара. Секция закрывается на замок. Все соседи приличные, спокойные люди. Кухня и с/у находятся в секции. Душ общий, чистый, после капитального ремонта. Площaдь комнаты 17м2. за счет присоединения балкoна, где сделан теплый пол и можно установить доп. спальное место. В комнате комфортно : зимой очень тепло, а летом не жарко. Мебель и техника остаются новым хозяевам. Прекрасное расположение дома: тихое место в центре города. В 10 мин ходьбы находятся 2 трамвайные ветки, а так же остановки общественного транспорта, откуда вы сможете уехать в любой конец города. Рядом с общежитием находятся разные учебные заведения, а именно хореографическое училище, Институт Проф образования , КубГТУ., КГИК. Всего 15 минут и вы окажитесь в Чистяковской роще. Здесь вы можете отдохнуть от городской суеты, насладиться прекрасным пением птиц, погулять среди вековых деревьев, покормить белок, а можно расположиться на полянке, почитать книгу или устроить воскресный пикничок. А если вы являетесь любителем бурной жизни , то прогулявшись 20-30 минут , вы окажитесь в Центре Города, где много музыки, кафе, прогулочных аллей. Купив комнату, вы сделаете прекрасную инвестицию, т к она всегда будет пользоваться спросом, как в аренде , так и в продаже, за счет своего удачного расположения. При покупке комиссия агентства взимается. Не упустите шанс стать обладателем этого выгодного предложения!.
Код: 123 Продам 1-комнатную квартиру, расположенную на улице им. Фадеева в ГМР. Этот дом находится в одном из самых живописных и зелёных районов города. В квартире выполнен высококачественный ремонт, включающий замену окон, дверей, электрики и стояков, что позволяет оценить её отличное состояние. Двор дома обустроен для комфорта жильцов: здесь есть детская площадка, парковка и множество зелёных насаждений. Инфраструктура района уже давно сложилась и предлагает множество возможностей для комфортной жизни. В шаговой доступности находятся детские сады, школы, высшие учебные заведения, поликлиники, аптеки, супермаркеты, банки, пункты выдачи заказов, почта, ателье, салоны красоты, рынок, кафе и рестораны, остановки общественного транспорта, набережная реки Кубань, остановки транспорта.
Шикарная 2к квартира! Без комиссий!!! О квартире: * 2-х комнатная квартира с дизайнерским ремонтом и мебелью * Площадь 58м2 * 8 этаж * КВАРТИРА С ДИЗАЙНЕРСКИМ РЕМОНТОМ И МЕБЕЛЬЮ О локации: * Развитая инфраструктура, ТЦ Московский возле дома, чистяковская роща в 5 минутах, улица Красная в 10 минутах, транспортная развязка в любую часть города. * Современные детские площадки на территории, парковки * В шаговой доступности все сетевые супермаркеты, хозяйственные магазины, спорт зал, кафе и рестораны, школы и дет сады, новый спортивный комплекс!! * Отлично развитая транспортная развязка: в пешей доступности автобусная остановка и до трамвая 10 минут пешком!!! * В общем все необходимое для жизни, и даже больше, в шаговой доступности!! ___________ Звоните прямо сейчас, чтобы записаться на просмотр! С АГЕНТАМИ НЕ СОТРУДНИЧАЕМ!!!
Продается лучшая 2х комнатная квартира, в этом районе. Отличный ремонт, просторная светлая, классные мебель и техника, только качество. Сам контролировал все! Рядом школа, садик, поликлиника, магазины и ярмарки. Рядом трамвай, транспортная развязка, и все необходимое. Документы проверены, продажа от собсвенника. Звоните, пишите в любое время. Показ так-же, есть ипотека. Оформим быстро. Реэлторов прошу не беспокоить!!!! Идентификатор объекта: 1-23217-3900
Сдаётся уютная студия с современным евроремонтом, площадью 25 кв. м, расположенная на 1 этаже 4-этажного дома. Высокие потолки 3 метра создают ощущение простора. Окна выходят во двор, что обеспечивает тишину и спокойствие. Студия идеально подойдёт для одного человека или пары. В квартире есть всё необходимое для комфортного проживания: на кухне и в комнате установлена мебель, имеется холодильник и телевизор. Совмещённый санузел оборудован душевой кабиной. Подключен интернет, поэтому можно работать и развлекаться без ограничений. Дом новый и предлагает наземную парковку для вашего автомобиля. Это удобно для тех, кто ценит личный транспорт. Район, в котором расположена студия, обладает развитой инфраструктурой. В шаговой доступности находятся школы, детские сады, клиники и магазины. Кубгау, онкологический центр, стадион Кубань. Все необходимое для жизни — рядом. Аренда осуществляется по договору. Залог обсуждается индивидуально. Приглашаем вас на просмотр квартиры, чтобы оценить все её преимущества лично. Записывайтесь на удобное время и приходите!
Продается квартира в лучшем районе Краснодара, рядом парк. Ремонт новый, делали для себя. Кровать была сделана на заказ. Вся сантехника итальянская. Во дворе есть все для жизни: Садик, школа, пункты выдачи, ТЦ. Рядом транспортная развяка, фитнес, магазины! Пишите звоните. Помошников прошу не беспокоить! В квартире сделано все четко, классный вариант для большой сеьми! Звоните заранее!!
Шикарная 3х комнатная квартира с отличным ремонтом. Продает от собвенника, есть ипотека. Она в ипотеке, закрою в день сделки. Отличный ремонт, жили семьей, решили переехать в дом. Ремонт свежий сделали 2 года назад. Звоните в любое время, я вам все покажу и расскажу, документы в день сделики. Отличное расположение, звоните! Реэторов прошу не беспокоить не звоните. Срочно!
Продaeтся уютная кваpтира с дизайнeрcким рeмонтoм на 10 этажe кирпичногo дoмa. Пpoсторнaя куxня плoщадью 8 м² обоpудoвaнa cовpeмeнной техникой, включая xолодильник и поcудомoeчную машину. B кваpтиpe есть бaлкон с видoм во двop, что oбeспечивает тишину и cпoкойcтвие. Совмещенный санузeл выпoлнeн в современном стиле с качественной сантехникой. В комнате установлен вместительный шкаф-купе и удобный диван. Из мебели также предусмотрены шкафы и обеденный стол. Дом расположен в закрытой территории с развитой инфраструктурой, имеется спортивная площадка.



Продается отличная двухкомнатная квартира в юбилейном микрорайоне на улице Чекистов 27. В квартире выполнен дизайнерский ремонт. Квартира расположена на 7 этаже 10-этажного дома, в доме пассажирский лифт и грузовой, а так же во всем дворе и подъездах камеры видеонаблюдения. Площадь квартиры составляет 46,9 квадратных метров + балкон. Комнаты изолированные, балкон застеклен. Площадь кухни 9 м2, жилая площадь 28 м2. Сделан качественный ремонт. Продается полостью укомплектована с новой мебелью и техникой. Квартира просторная и светлая. Самый зеленый и развитый райн города. Зеленый двор, рядом Рождественская Набережная. Платановый бульвар. В пешей доступности : магазины "Магнит", "Пятерочка", "Окей", "Табрис". Рядом находятся школы 89, 101, 55, лицей 90, детские садики 46, 233, 115, 232, поликлиника 25, 5 и Екатерининская клиника на Кожевенной , что очень удобно для семей с детьми. В шаговой доступности- фитнес клуб X fit, Кубанский Государственный Аграрный Университет, Ботанический сад. Много мест для прогулок и отдыха. Остановки общественного транспорта возле дома, где ходят автобусы 38, 77, Остановки в 1 минуте: - трамвай 6, 11, 21 - троллейбус 8 Автобусы ходят во все направления города. До Красной ул. и центра Вы доберетесь за 10 минут. До ТЦ Галерея можно быстро и без пробок доехать без пробок. До ТРЦ Красная площадь- 15 минут. Быстрый выезд из города и на море. Квартира проверена и готова к быстрой сделке. Записывайтесь на просмотр!
На эксклюзивнoй прoдажe 4-х комнатная квартира в уникaльном киpпичном доме с толщиной стен 55 сантиметров в районе парка Галицкого. О локации: В 12 минутах ходьбы (1 км.) - стадион Краснодар и лучший в Европе парк — парк Сергея Николаевича Галицкого В 3 минутах ходьбы (400 м.) - средняя школа 93 В 2 минутах ходьбы (300 м.) - детский сад-ясли Василёк В 1 минуте ходьбы (50 м.) - английский частный детский сад Sun School О многоквартирном доме: Кирпичный дом, построенный по индивидуальному проекту с толщиной межквартирных стен и перекрытий 55 сантиметров. Очень теплый дом. Крутая шумоизоляция и теплоизоляция. Коммуникации все центральные. Чистота и порядок на внутри дворовой территории и в местах общего пользования постоянно соблюдается. Сделан капитальный ремонт и освежены подъезд. О квартире: Полноценная 4-х комнатная квартира с изолированными комнатами, ленточным застекленным балконом, с двумя санузлами и одной кладовой, расположенная на комфортном для здорового проживания 2-ом этаже. Полы - дубовый паркет и настоящего массива. Качественно, практично и дорого. Выполнен свежий и стильный домашний ремонт из качественных материалов с использованием экологически чистых материалов. Мебель и техника обсуждаются. Звоните. Записывайтесь на показ.
Продаётся уютный и просторный дом 87,3кв.м. с очень эргономичной планировкой на участке земли 6,31 сотки. В доме выполнен качественный ремонт. Два выхода. Один из них выводит на просторную террасу со стороны двора. Очень много встроенной мебели. В доме большая кухня-гостиная 35кв.м., три спальни 8,12 и 12 метров, просторный санузел и коридор, терраса 14 кв.м. Двор огорожен забором из металлопрофиля, автоматические откатные ворота, бассейн, забетонированы столбы для беседки, высажены плодоносящие деревья. Электричество, центральное водоснабжение, скважина, фильтры для воды, канализация - септик, видеонаблюдение. В шаговой доступности находится остановка общественного транспорта, магазины. Очень тихое место. Мебель остаётся по договорённости. Документы готовы к сделке.
Продается светлая, уютная классная и супер двушка. Клевая и классная, просторная и светлая. Большая, хватит места всем. Район сильно развитый, есть все необходимое, рестораны, кафе, магазины, 2 садика, 3 школы, поликлиники, ярмарки. Документы ччстые, никто не прописан, ремонт я делал для себя, так ка не планировал продавать. обстоятельства. Звоните в любое время!















































































