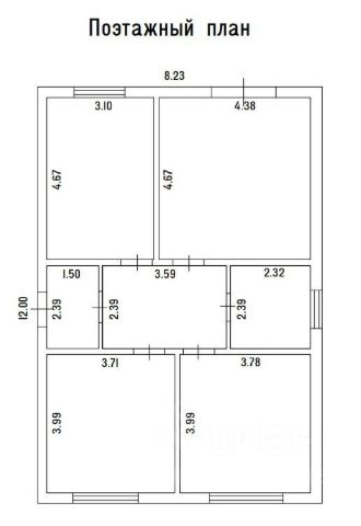
Арт. 116860304 МТВ Продается дом в Знаменске площадью дома ~ 85м2, на земле 4.2сотки, назначение ИЖС. - Новая школа , - Вечернее освещение улиц. - Вода центральная . - Канализация септик бетонный -8 м3. - По всему дому на полу проложен пеноплекс - Электричество 3 фазы -10 кВ . - Газ по меже , под давлением , соседи подключили ! - Потолок подшит OSB плитой - Штукатурка механизированная под обои. - Отопление , - Теплый пол , - Электрокотел уже стоит - Цена 9.5 Подходит семейная ипотека/ госпрограмма ! ОТКРЫТИЕ ИПОТЕКИ БЕСПЛАТНО Никакой комиссии при покупке! Звоните! Записывайтесь на показ объекта прямо сейчас. Рада буду ответить на все ваши вопросы. Нет одобренной ипотеки? Свяжитесь с нами, мы подберем для вас программу на выгодных условиях в одном из банков партнеров! "ООО "Самолет Плюс" (ОГРН 1067746757704) оказывает консультационные услуги по подбору программы кредитования, подходящей по условиям и требованиям к Клиенту, как к заемщику и к приобретаемому им объекту недвижимости. Конкретные условия зависят от банка, программы кредитования и иных требований."























































































