


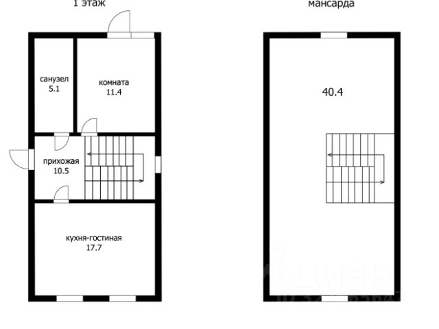
Продам просторный кирпичный дом 2017 года постройки в СНТ Связист. Адрес: ул. Тимирязева, 38 (Ростовское шоссе, 12 км). Основные параметры: Общая площадь: 145 кв.м. Жилая площадь: 80 кв.м. Участок: 6 соток. Материал стен: кирпич. Комнаты: 5 раздельных. Этажность: 2. Планировка и ремонт: 1 этаж: кухня-гостиная 25 кв.м, 2 раздельные комнаты, просторная ванная (8 кв.м) и уборная (2 кв.м). Санузел полностью отделан кафелем. 2 этаж: 3 раздельные комнаты. Состояние: дом с хорошим чистовым ремонтом, готов к заселению. Всё функционирует исправно. Коммуникации (полная автономия и комфорт): Отопление: газовый котёл от газгольдера (заправки хватает на 6+ месяцев). Канализация: септик двойной переливной на 12 куб.м. Водоснабжение: 2 скважины по 30 метров, насосная станция, бойлер. Электроснабжение: центральное. Дополнительно: Участок: 6 соток, фасад 20x30 м. Двор: выложен брусчаткой, есть капитальный навес для авто. Инфраструктура рядом: Магазины: Удача, овощной рынок, ярмарка. Для семьи: детский клуб Лисёнок. Услуги: ногтевая студия, водомат, пункт выдачи Wildberries. Идеальный вариант для тех, кто ищет уютный, полностью обустроенный дом для комфортной жизни за городом без необходимости вкладываться в ремонт и подключение коммуникаций. Звоните, чтобы назначить просмотр! Торг уместен.










































































