Мы используем куки-файлы. Соглашение об использовании
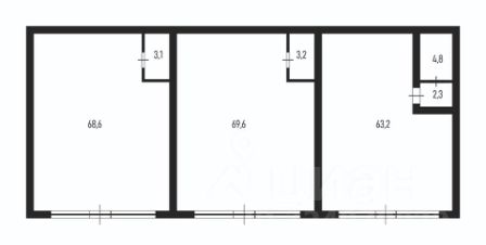
Площадь214,8 м²
Этажность1
Отчёт о привлекательности объектаУзнайте, насколько помещение и район подходят для вашего бизнеса
Что входит в отчёт
  • Охват населения
  • Пешеходный трафик
  • Автомобильный трафик
  • Средний бюджет семьи по району
  • Арендные ставки рядом
  • Точки притяжения
  • Конкуренты в радиусе 1 км
  • Рекомендации по выбору места для бизнеса
ТОП ЛОКАЦИЯ! х. Ленина, ул. Пластунская, 30/А. Торговое здание с арендаторами. Площадь здания - 214,8 кв.м., в собственности. Площадь земельного участка - 319 кв.м., в собственности. Коммуникации: скважина, септик. Электрическая мощность: 50 кВт. Планировка свободная, ремонт. Сдано сетевым арендаторам: Аптека "Апрель", "Пекарня", "Рыба". Въезд в крупный жилой массив - х. Ленина, рядом Магнит, Магнит-Косметик, остановка общественного транспорта. Эксклюзивное предложение. Без оплаты комиссии со стороны покупателя! Ваш персональный менеджер, Ростислав Дмитриев. код:1013867628
lock

Войдите или зарегистрируйтесь
для просмотра информации

Просматривайте условия сделки и всю информацию об объекте
Сохраняйте фильтры в поиске и не вводите заново
Доступ к избранному с любого устройства
Неограниченное добавление в избранное
Позвоните автору
Вам ответят на все вопросы
Остались вопросы по объявлению?
Позвоните владельцу объявления и уточните необходимую информацию.
  • Инфраструктура
  • Похожие рядом
Автономное отопление
Помощь надёжных риелторов
Риелтор партнёр Циан поможет купить или продать любую недвижимость
36 000 000 ₽
481 275 $
406 124
Цена за метр
167 598 ₽
Налог
УСН
Агентство недвижимости
Суперагент
На Циан
3 года
Объектов в работе
201