Мы используем куки-файлы. Соглашение об использовании
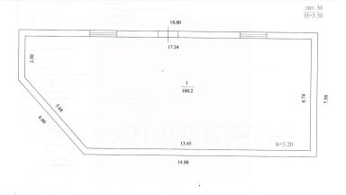
Площадь108,2 м²
Этажность1
Отчёт о привлекательности объектаУзнайте, насколько помещение и район подходят для вашего бизнеса
Что входит в отчёт
  • Охват населения
  • Пешеходный трафик
  • Автомобильный трафик
  • Средний бюджет семьи по району
  • Арендные ставки рядом
  • Точки притяжения
  • Конкуренты в радиусе 1 км
  • Рекомендации по выбору места для бизнеса
Продажа коммерческого здания в густонаселённом жилом районе Объект: отдельно стоящее одноэтажное здание Площадь: 108,2 м² Земельный участок: 3,8 сот. (в собственности) Этажность: 1 этаж Входы: 2 отдельных входа Зона разгрузки/погрузки: есть Характеристики и оснащение Свободная планировка, качественный ремонт Высота потолков — 3,5 м Электрическая мощность — 50 кВт Коммуникации: скважина, септик Преимущества объекта Расположен внутри крупного спального района — стабильный поток клиентов Отлично подходит под торговлю, услуги, пункт выдачи, офис, склад-магазин Надёжный сетевой арендатор — в помещении более 4 лет Инвестиционная привлекательность Объект уже приносит стабильный арендный доход. Подходит как для готового бизнеса, так и для собственного использования. Свяжитесь с нами для получения дополнительной информации и организации просмотра! код:1014003067
lock

Войдите или зарегистрируйтесь
для просмотра информации

Просматривайте условия сделки и всю информацию об объекте
Сохраняйте фильтры в поиске и не вводите заново
Доступ к избранному с любого устройства
Неограниченное добавление в избранное
Позвоните автору
Вам ответят на все вопросы
Остались вопросы по объявлению?
Позвоните владельцу объявления и уточните необходимую информацию.
  • Инфраструктура
  • Похожие рядом
Автономное отопление
Помощь надёжных риелторов
Риелтор партнёр Циан поможет купить или продать любую недвижимость
21 000 000 ₽
282 653 $
237 157
Цена за метр
194 086 ₽
Налог
УСН
Агентство недвижимости
Суперагент
На Циан
3 года
Объектов в работе
228