Мы используем куки-файлы. Соглашение об использовании
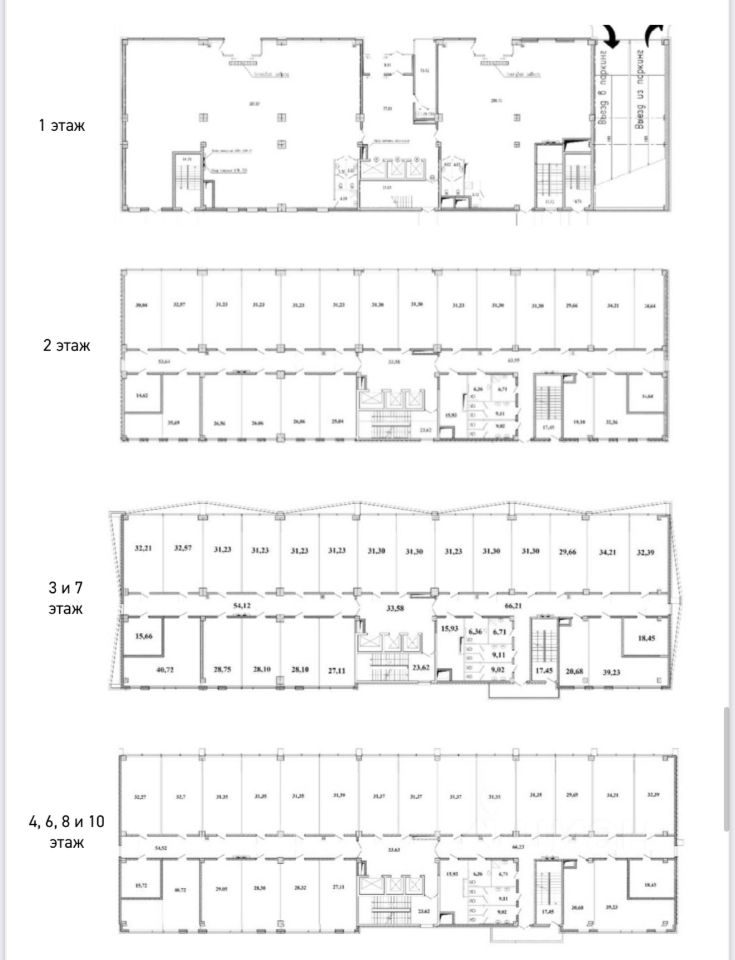
Площадь10 000 м²
Этажность10
Отчёт о привлекательности объектаУзнайте, насколько помещение и район подходят для вашего бизнеса
Что входит в отчёт
  • Охват населения
  • Пешеходный трафик
  • Автомобильный трафик
  • Средний бюджет семьи по району
  • Арендные ставки рядом
  • Точки притяжения
  • Конкуренты в радиусе 1 км
  • Рекомендации по выбору места для бизнеса
Вашему вниманию предлагаю эксклюзивный Вариант для инвестиции !, В 10 этажей Не жилое, можно под гостиницу, апартаменты, Медицинский центр и т. д. Локация максимально приближена к. элитной, Центральная часть города, что позволит повысит чек с квадратного метра. Первы этаж высота потолков 4,6 метра идеально под ресторан, кафе т . д Остальные этажи высота 3м. Общая площадь здания - 9 758,50 м2; полезная площадь здания - 8 437,33 м2; расчётная площадь здания - 6 970,65 м2. Разрешение на строительство продлено до 28.12.2028 г. Под зданием расположена подземная парковка на 200 мест .Цена указана без парковок. В здании предусмотрено 3 лифта с возможностью спуска в парковку, что очень удобно для посетителей. На данном этапе по строительству объекта выполнено следующее: монолитный каркас здания - 100%; кладка наружных стен здания - 100%; кладка внутренних стен здания - 65%; гидроизоляция кровли для подготовки к зимнему периоду 100%; ливневая канализация внутренняя - 100% (выполнена с крыши здания и подключена в городскую сеть); ливневая канализация наружная - 100% (нанесена на топографическую съёмку и зарегистрирована в архитектуре); индивидуальный тепловой •пункт 100% (осталось поставить КИП и А); тепловые сети ниже отм. 0.000 - 100%; узел подключения спринклерного пожаротушения B помещении АУПТ - 100%; насосная станция повышенного давления в помещении АУПТ - 100%; узел учёта воды - 100%; ВРУ (мощность энергопринимающих устройств - 630 кВт, 1 и 2 категории) - 100%. Выполнены и оплачены все технические условия, получены акты о техническом присоединении всех коммуникации. Звоните, не упустите возможность инвестировать в ликвидный обьект.
lock

Войдите или зарегистрируйтесь
для просмотра информации

Просматривайте условия сделки и всю информацию об объекте
Сохраняйте фильтры в поиске и не вводите заново
Доступ к избранному с любого устройства
Неограниченное добавление в избранное
Позвоните автору
Вам ответят на все вопросы
Остались вопросы по объявлению?
Позвоните владельцу объявления и уточните необходимую информацию.
  • Инфраструктура
  • Похожие рядом
Приточная вентиляция
Центральное отопление
Спринклерная система пожаротушения
Помощь надёжных риелторов
Риелтор партнёр Циан поможет купить или продать любую недвижимость
  • 5,0・1
  • Документы проверены
  • 6 лет на Циане
  • 67 объявлений
  • 720 000 000 ₽
    9 625 489 $
    8 122 478
    Цена за метр
    72 000 ₽
    Налог
    НДС включен: 129 836 065 ₽
    РиелторВладимир Медведев
    5,0・1
    Документы проверены