Только на Циан
Адлер
12 минут на транспорте
150 000 ₽/мес.
От года, комм. платежи включены (счётчики включены), без комиссии, залог 100 000 ₽
Сдается стильный видовой таунхаус 132 м² в Молдовке (Адлер), собственник.
Очень светлый и просторный дом с панорамным остеклением, потолками 4,5 метра и видом на море.Современный интерьер, много воздуха и света, уютная атмосфера.
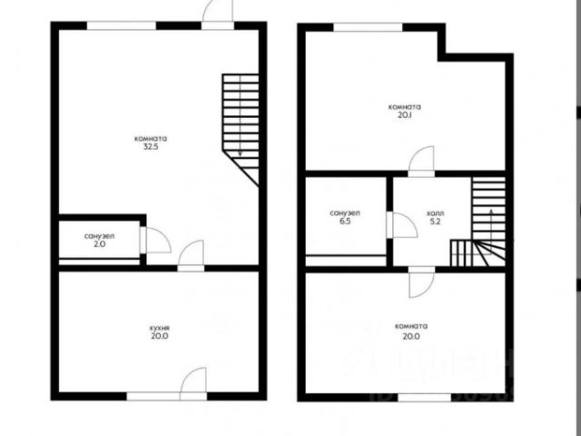
Планировка:
— 3 спальни на втором этаже— балкон с видом на море— 2 санузла— просторная кухня-гостиная— сауна— терраса с зоной отдыха— место для хранения лыж / сноубордов— собственное парковочное место + мойка для машины— участок около 1 сотки— подсобное помещение
Техника и оснащение:
— 4 кондиционера— теплые полы по всему первому этажу (газ)— Wi-Fi— стиральная машина Bosch— посудомоечная машина Bosch— духовка Bosch— витражное алюминиевое остекление— проектор вместо телевизора
Инфраструктура и расположение:
— остановка автобуса 138 возле дома— до магазина Пятёрочка — 300 метров— все доставки (Яндекс, ozon, Delivery и др.) привозят прямо к дому— до моря и Сириуса — около 15 минут на машине— до аэропорта — 5-6 минут— до Красной Поляны — около 35 минут— удобный выезд без городских пробок
Дом 2021 года постройки.
Очень приятные и спокойные соседи.
Ранее в доме 4 года жила одна семейная пара — съехали в связи с покупкой собственного дома.
Сдается на длительный срок, от 1 года, без повышения цены на сезон.
С питомцами — обсуждаемо.
150 000 ₽/мес + коммунальные платежи.
при аренде только на летний сезон стоимость и условия обсуждается отдельно
























































































