


365 000 ₽/м²
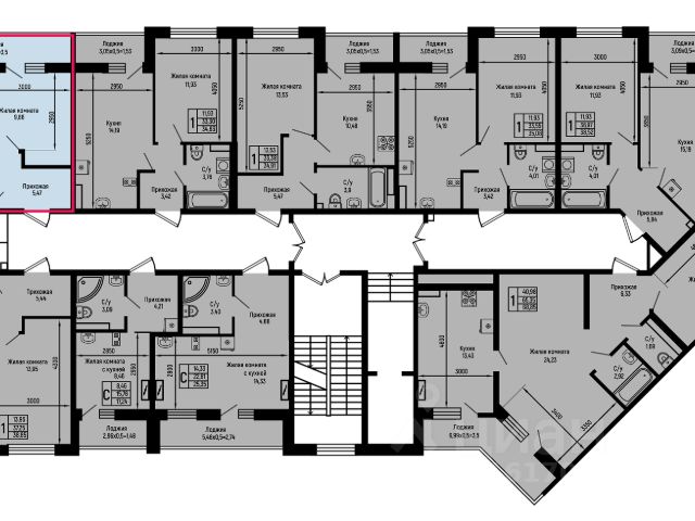
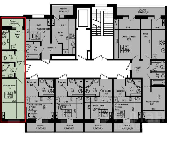
Продаётся 1-комнатная квартира в сданном доме (Литер А), срок сдачи: IV-кв. 2025, общей площадью 35.96 кв.м., на 8 этаже. Жилой комплекс "На волнах мечты" - самый крупный проект новостроек в Туапсинском районе. Комплекс будет состоять из нескольких домов в тихом поселке Агой с благоустроенной придомовой территорией и развитой инфраструктурой.






























































































































































