


340 000 ₽/м²
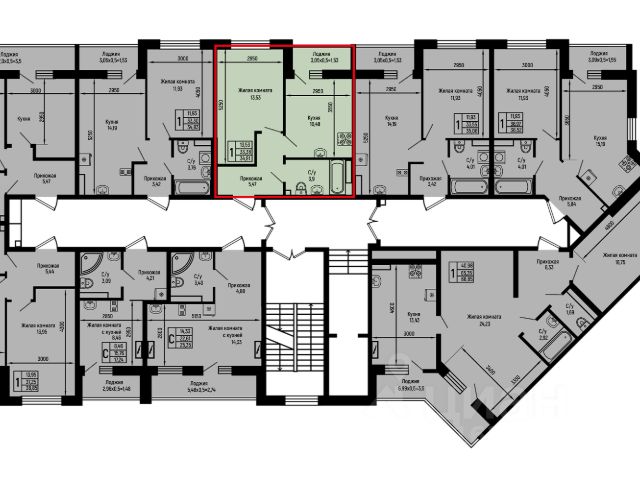
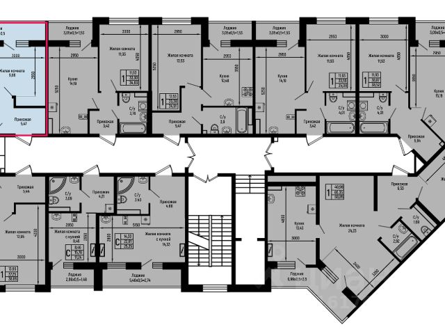
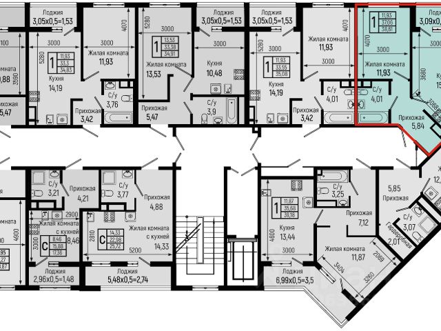
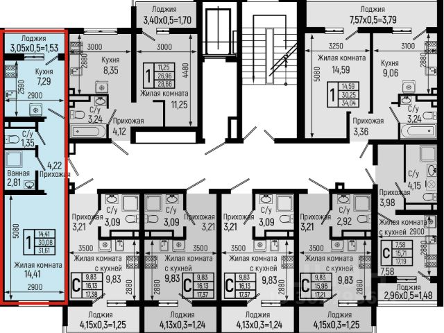
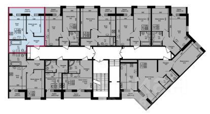
Продаётся 1-комнатная квартира в строящемся доме (Литер В), срок сдачи: IV-кв. 2026, общей площадью 39.95 кв.м., на 8 этаже. Жилой комплекс "На волнах мечты" - самый крупный проект новостроек в Туапсинском районе. Комплекс будет состоять из нескольких домов в тихом поселке Агой с благоустроенной придомовой территорией и развитой инфраструктурой.






























































































































































