Только на Циан
ЗИП
8 минут на транспорте
14 000 000 ₽
140 000 ₽/м²
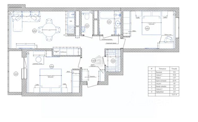
Продаётся просторная трёхкомнатная квартира в современном жилом комплексе по адресу: Краснодар,Стахановская улица, 1/5к3. Общая площадь квартиры составляет 100 кв. м, жилая площадь — 57 кв. м, а кухня впечатляющих 17.6 кв. м. Квартира расположена на 19 этаже 22-этажного монолитного дома, построенного в 2022 году. Высота потолков — 2.89 метра, что создаёт дополнительное ощущение простора и света. Из окон открывается вид на улицу.
Квартира без ремонта, что даёт вам возможность воплотить все ваши дизайнерские идеи и создать интерьер мечты. В планировке предусмотрены три комнаты и отдельный санузел. Также имеется лоджия, где можно наслаждаться утренним кофе или вечерним отдыхом.
Дом оборудован двумя пассажирскими и двумя грузовыми лифтами, поэтому вы без труда сможете подняться на свой этаж, даже с крупногабаритными вещами. Подземная парковка обеспечит безопасность вашего автомобиля и удобство в любое время года.
Район порадует развитой инфраструктурой: в шаговой доступности находятся школы, детские сады, клиники и разнообразные магазины. Всё это сделает вашу жизнь здесь комфортной и удобной. Транспортная доступность также на высоте: до ближайших остановок можно дойти за несколько минут, что позволит быстро добраться до любой точки города.
Продажа квартиры осуществляется без обременений, все документы готовы к сделке. Возможна покупка в ипотеку. Продам 3-комнатную квартиру в микрорайоне Авиагородок в городе Краснодар.










































































