


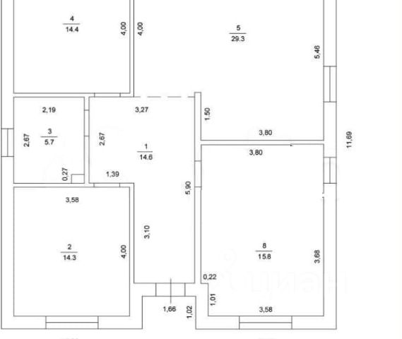
Для тех, кто предпочитает настоящую загородную жизнь на лоне природы, у реки, и при этом в окружении всей необходимой инфраструктуры В ПРОДАЖЕ! Новый коттедж со всеми коммуникациями в центре села Красносельское. Подъездные пути к дому — асфальтированная дорога, возле дома —супермаркет "Магнит", остановка общественного транспорта. Также в пешей доступности — школа и детский сад, отделение банка, МФЦ. До станицы Динской и нового лицея ходит автобус, время в пути — 10 минут. Данное предложение подходит для покупки в любую льготную ипотеку. Одноэтажный коттедж общей площадью 100 кв.м расположен на участке 5 соток земли, назначения ИЖС. Возведен на ленточном фундаменте, материал стен — блок и облицовочный комбинированный кирпич, большие металлопластиковые окна с внешней ламинацией, кровля — металлочерепица, потолки утеплены. Широкая бетонная отмостка — по периметру дома, бетонная дорожка к дому, бетонированная площадка для авто внутри участка. Забор из профнастила — по периметру участка, с фасадной стороны — капитальные кирпичные колоны и евроштакетник, откатные ворота, калитка. Отличная планировка: крытое крыльцо, прихожая, холл делит помещение дома на приватную и гостевую зону, так, слева — просторная хозяйская спальня, две комнаты расположены справа отдельно, раздельный санузел, зонированная кухня-гостиная с выходом на крытую террасу. Внутри дома идет предчистовая отделка: стяжка пола, штукатурка стен, полная электро- и сантехническая разводка по всему дому, теплые полы — в кухне-гостиной, санузле, холле, тамбуре. В комнатах — радиаторы, будет установлен двухконтурный газовый котел. Высокие потолки. Коммуникации: вода — скважина 32 метра, свет — 15 кВт. электроэнергии, 3 фазы, канализация — система ЛОС, газ заведен подключен. Дом готов. Льготная ипотека с удорожанием стоимости дома.






















































































