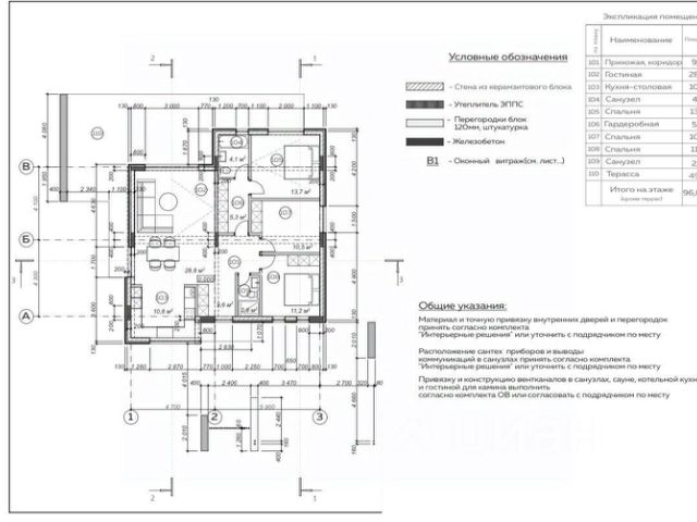
Объект 164549. Уникальный проект: 1-этажный дом в стиле Хайтек! Хотел бы поделиться с вами увлекательным проектом, который находится на стадии строительства. Этот современный дом с площадью впечатляющих 96квадратных метров расположен на 4,5 сотках земли и предлагает идеальное сочетание комфорта и стиля. Основные характеристики: Планировка: Продуманная и функциональная, в доме предусмотрены 3 комнаты с удобными размерами: 10,5 м², 13,3 м² и 11,2 м². Каждое пространство создано с учетом максимального удобства для будущих жильцов. Гостиная: Просторная гостиная площадью 28 м² станет отличным местом для семейных встреч и общения с друзьями. Кухня: Уютная кухня, идеально подходящая для кулинарных экспериментов и семейных ужинов. Санузлы: Наличие двух санузлов обеспечит комфорт и удобство для всей семьи. Гардеробная: Дополнительное пространство для хранения вещей поможет поддерживать порядок и организованность в вашем доме. Коммуникации: Дом оснащен всеми необходимыми коммуникациями, включая: Электричество Газ Септик Центральное водоснабжение Это гарантирует, что ваше жилье будет полностью обеспечено всеми удобствами современной жизни. Заключение: Не упускайте возможность стать владельцем такого прекрасного дома в стиле Хайтек. Завершение строительства уже близко, и этот проект обещает стать идеальным местом для комфортной жизни. Если вас заинтересовал этот дом, не теряйте время — обращайтесь к нам для получения дополнительной информации или для осмотра места строительства. Ваш новый дом ждет вас!










































































