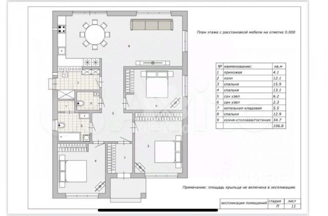
Продается уютный и просторный дом в поселении Сказочный край (в районе станицы Григорьевская). 3 отдельные комнаты, большой зал, кухня, веранда, гостевая комната с отдельным входом. На втором этаже недостроенный мансардный этаж 5 * 11 м. Площадь дома 110 м2 Большой участок (1 га), засажен деревьями (более 100 шт.), яблони, персики, абрикосы, сливы, виноградник, фундук, инжир. Участок ровный, очищен от кустарников, готов к дальнейшим посадкам. Электричество сетевое 15Квт, а также рабочая солнечная система на 2квт. Отопление теплый пол+батареи, дровяной котел, с возможностью переключения на газовое отопление от газгольдера/баллонов. Инверторный кондиционер (+ отопление в межсезонье) Дом автономный, своя скважина с чистой водой, в солнечные дни полностью свое электричество, очень теплый - толщина стен 40 см. Удобен для проживания большой семьей - деткам есть где погулять и получить близкое общение с природой. На территории участка 2 теплицы, баня 6*2,4 , место для пикников. До ближайшей станицы гравийная дорога 1,5 км (Григорьевская), далее через 2 км - станица Смоленская. На территории близлежайших поселений есть: школы Классическая и Вальдорфская, дет. садик, Дом Культуры, регулярно проводятся общие мероприятия, для детей много кружков, занятий. В поселении в соседних домах продают свою эко-продукцию - домашнее молоко, сыр, домашний хлеб, эко-сладости. Вокруг поселения горы и лес, рядом протекает река, соседние участки обустраиваются, много уже построенных домов и живущих соседей. На территории поселения есть детская площадка и большие пруды для купания, рядом лес. В поселении и в окрестностях постоянно проходят различные мероприятия и праздники. Есть доставка домашнего хлеба на закваске , десертов без сахара, молочной продукции и других продуктов. Рядом в станицах есть вся инфраструктура магазины, гос. школа, детский сад, пункты выдачи озон, вайлдберриз. Регулярно ходит маршрутный автобус до Краснодара из Григорьевской. Расстояние до Краснодара - меньше 40 км, за 2-3 часа можно доехать до моря, гор и горячих источников Звонить по объявлению с 8:00 до 21:00








































































