

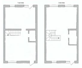
Микрорайон Новая Елизаветка Микрорайон Новая Елизаветка - инновационный проект ИНСИТИ девелопмент бизнес-класса. Микрорайон расположен в динамично развивающемся Прикубанском округе г. Краснодара. На территории расположены 19 многоквартирных домов высотой 4 этажа. Дворовые территории обустроены в виде стилобатов. Это двухуровневая конструкция, на первом этаже которой будет размещена крытая автопарковка, а на втором зоны отдыха, детские и спортивные площадки. Также есть наземные дворы, наполнение которых такое же как и на стилобатах. Помимо многоквартирных домов в Новой Елизаветке расположены индивидуальные жилые дома и таунхаусы. Собственная инфраструктура: • муниципальная школа на 616 мест в смену • детский сад на 350 мест • собственный парк с ландшафтным многоуровневым дизайном и озеленением "4 сезона" • озеро с зонами для отдыха • велодорожки через весь микрорайон • ресторан с видом на озеро • торговый центр • круглосуточная система видеонаблюдения • КПП Дом 5/9 Купить таунхаус в округе Прикубанский в городе Краснодар.


















































































































































