


4 200 000 ₽
Номер объекта: 540905. Вашему вниманию предлагается уютная половина жилого дома, расположенная в живописном уголке села Сукко — идеальное место для тех, кто мечтает насладиться спокойствием природы вдали от городской суеты. Здесь вас ждут просторные комнаты, оборудованные всем необходимым для комфортного проживания.
Особое внимание уделено созданию условий для семейного отдыха: помимо отдельного домика, предназначенного исключительно для гостей, мы предлагаем воспользоваться общим бассейном, где можно расслабиться после активного дня прогулок по окрестностям.
Основные преимущества:
- Удобство расположения: Находится недалеко от пляжа и основных достопримечательностей района, обеспечивая быстрый доступ ко всему необходимому.
- Просторные помещения: Идеально подходят как для семей с детьми, так и для небольших компаний друзей.
- Отдых у бассейна: Возможность освежиться в жаркий летний день прямо на территории комплекса.
- Идеальное сочетание цены и качества: Вы получаете максимум комфорта по доступной цене.
В доме ванна и туалет (1 этаж). Кухня полноценная. Теплый пол подключаемый. Отопление (электрическое). Панель варочная (тоже электрическая). Скважина более 100 м. Вода в дом тоже заведена. Септик. Дорога не асфальтированная, но засыпана мурой. Внизу (через улицу) остановка общественного транспорта. Проведен интернет.
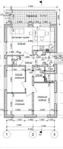
В продаже 1/2 от дома площадью 113 кв.м. и участка 6 соток
Этот вариант жилья станет прекрасным выбором для вашего отпуска, гарантируя незабываемые впечатления и отдых на природе!


















































































