Только на Циан
Сады
7 минут на транспорте
8 300 000 ₽
Продаю дом в одном из лучших районов города, в поселке Северном.
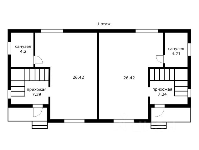
Дом построен полностью из кирпича, на материалах не экономили. На первом этаже 2 большие спальни, санузел и кухня, весь второй этаж большая гостиная, есть место для гардеробных.
Участок правильной прямоугольной формы размером 4,9 соток, квадратный. Участок ухоженный, есть навес для 2-х авто.
Район активно развивается, для жизни есть все, включая базу отдыха. До магазинов и остановки общественного транспорта 50 метров, несколько школ, садики.
При покупке дополнительно оплачивается комиссия покупателем
id 1013858937
Звоните, отвечу на вопросы, организую показ.
Лучше один раз увидеть чем сто раз послушать, приезжайте покажу, расскажу.
Звоните. Продам загородную недвижимость в СНТ Садовод в городе Краснодар.









































































